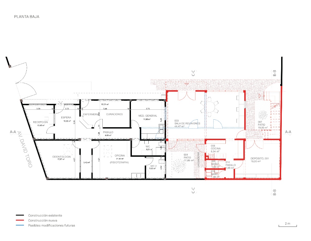
El Consejo de Salud Rural Andino (CSRA) es una organización no gubernamental con más de 40 años de experiencia trabajando con poblaciones desfavorecidas que posee un pequeño centro de salud en el barrio Bautista Saavedra de la ciudad de El Alto en Bolivia, ante la necesidad de nuevos espacios administrativos una sala de reuniones y depósitos se encargó una infraestructura nueva junto al centro existente, con un presupuesto mínimo de 30 mil dólares el edificio debía cumplir con el programa y permitir una futura ampliación para conectar ambos espacios, los arquitectos Samuel Hilari, Ximena Yanaguaya y Maria Renee Miranda diseñaron y ejecutaron la obra buscando materiales estandarizados en el mercado local, para garantizar calidad a bajo costo la obra emplea una estructura mixta de hormigón armado y madera tabiques de ladrillo de seis huecos, cubierta de plancha galvanizada y ventanas de acero, integrándose al lenguaje arquitectónico del entorno, el diseño innova en la ocupación del lote al incorporar dos patios que facilitan luz y ventilación natural, además de usar aislamiento térmico y ladrillo a soga para mejorar el confort de forma económica, la distribución se basa en una cuadrícula ajustada a las dimensiones del ladrillo, para optimizar el material en la planta baja existe una sala de usos múltiples flexible con cocina y depósito, para clubes de jóvenes y adultos mayores con acceso al patio, mientras que en el futuro podría adaptarse para consultorios o laboratorios, la planta alta alberga las oficinas y el archivo institucional con acceso mediante escaleras exteriores que rodean un patio central donde se plantaron Queñuas que son arbustos nativos resistentes al clima frío y seco del altiplano boliviano.




