Sens Costa Rica

Sens Costa Rica
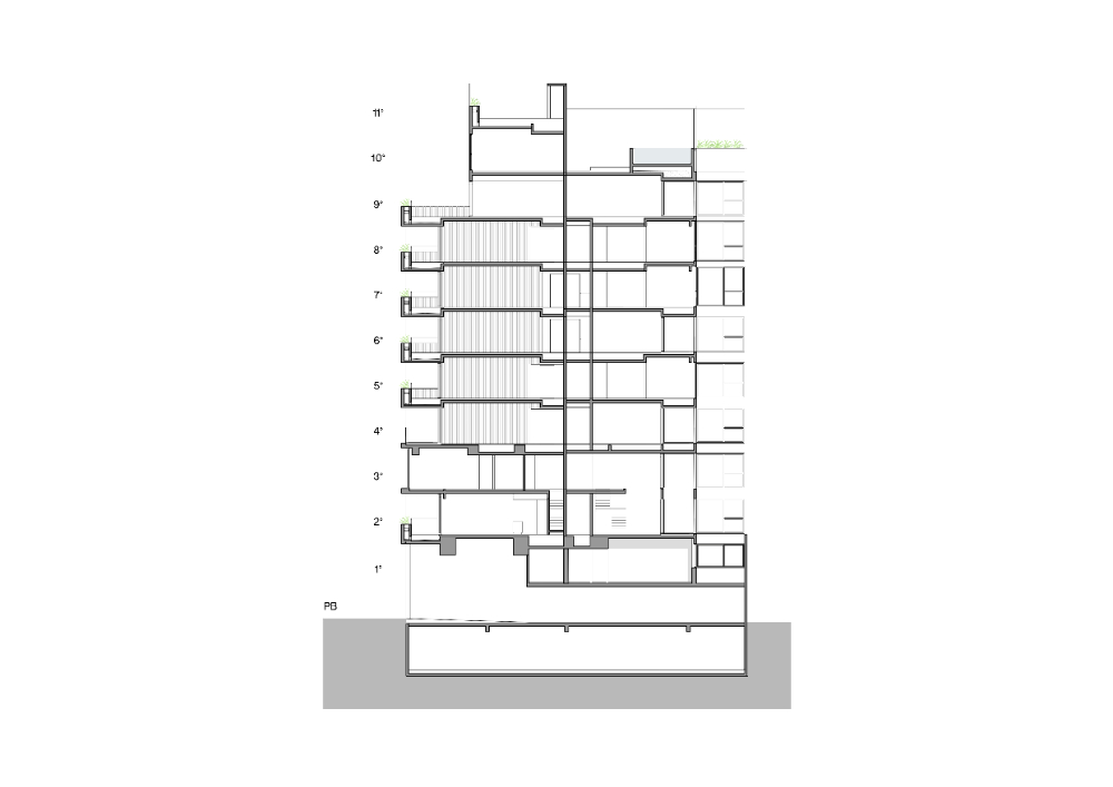
Autor: ATV Arquitectos
Origen: internacional
Categoría: Producción Profesional
Subcategoría: Obra Construida
Año: 2024
Ciudad / País: Argentina
Colaborador: Anabella Gatto, Josefina Llambías, Anabella Sapia, Florencia Fernandez, Sabina Piñeiro y Leone, Leandro Bonaccini y Facundo Martinez

Galería

Descargar panel