Larco 791: Ecosistema Mixto para Vivir, Trabajar y Convivir
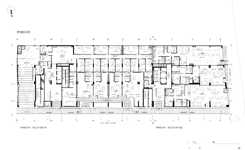
Ubicado en la intersección de la avenida Larco y la calle Bolívar, el proyecto propone un edificio de uso mixto que integra vivienda, oficinas y comercio en un solo volumen, consolidando una pieza urbana contemporánea en uno de los corredores más representativos de Miraflores.
El zócalo comercial se concibe como una extensión de la vida peatonal, incorporando comercio activo en primer nivel y una alameda frontal que amplía el espacio público. Este gesto refuerza la relación edificio–ciudad y genera un espacio de estancia, tránsito y encuentro que aporta vitalidad y continuidad urbana a la avenida.
Sobre el zócalo, los niveles de oficinas configuran un frente urbano continuo, mientras que los niveles superiores de vivienda integran áreas comunes orientadas a fomentar la convivencia, como espacios de encuentro, terrazas y zonas de uso flexible compatibles con el ritmo urbano del distrito. La incorporación de lobbies independientes garantiza autonomía funcional y eficiencia operativa para cada programa.
La implantación del volumen se define mediante retranqueos, vacíos y transparencias que permiten una mayor apertura hacia la ciudad y una relación visual fluida entre lo público y lo privado. La materialidad —concreto aparente, vidrio y elementos metálicos— responde a criterios de durabilidad, bajo mantenimiento y una expresión contemporánea del paisaje urbano.
El proyecto incorpora estrategias pasivas de ventilación, control solar e iluminación eficiente, promoviendo una relación equilibrada entre densidad, confort y sostenibilidad. Desde el entendimiento del contexto como oportunidad, el volumen opera como mediador entre lo público y lo doméstico, integrando usos complementarios y proponiendo una visión contemporánea de densidad habitable. En conjunto, Larco 791 se plantea como un aporte a la calidad urbana del distrito y una referencia para futuros desarrollos mixtos en la ciudad.





