La capilla se emplaza en un lugar inigualable, ofreciendo una perspectiva única que combina la serenidad del entorno con la majestuosidad de la ciudad como fondo. Desde su ubicación, cada visita brindará una experiencia visual y espiritual excepcional, creando una sensación de armonía y conexión entre el barrio, la capilla y el paisaje urbano, convirtiéndose así en un lugar donde la contemplación y la belleza se entrelazan de manera inolvidable.
La nueva Capilla Virgen de Copacabana en Alto Pacasa se proyecta como un verdadero hito religioso y cultural para el barrio, convirtiéndose en un espacio de encuentro y devoción que fortalecerá la identidad comunitaria. Su diseño contemporáneo y ubicación permitirán que los vecinos no solo participen de actos litúrgicos, sino que también se genere un punto de referencia social y cultural, integrando tradición, espiritualidad y arquitectura en un lugar que invita a la reflexión, la celebración y la unión de la comunidad.
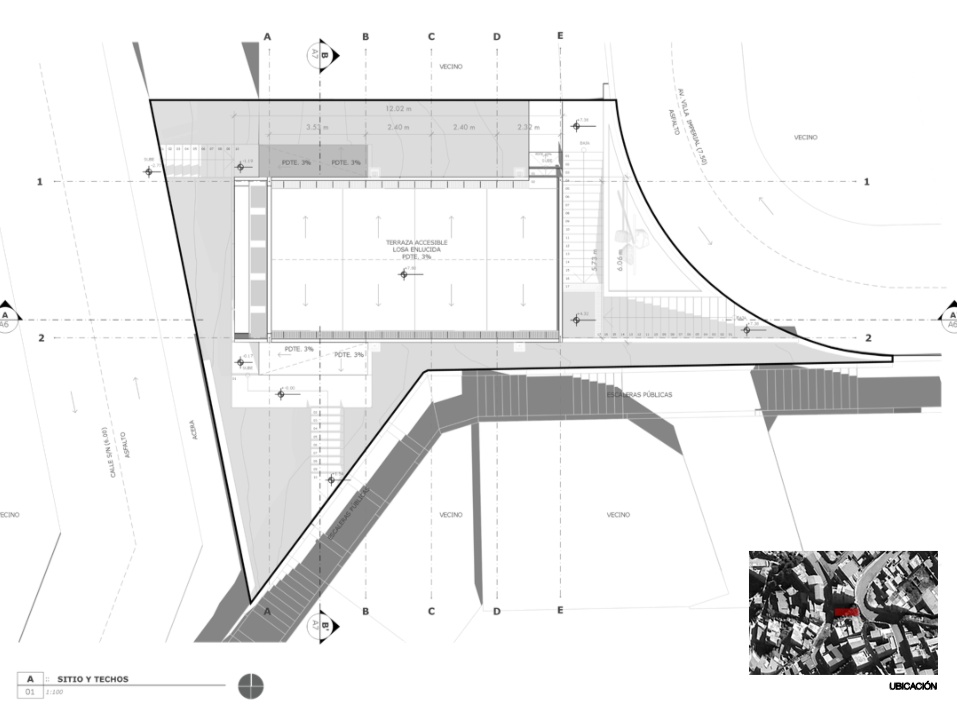
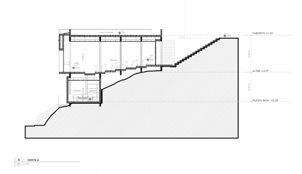
La Capilla de Alto Pacasa se consolida como un símbolo para el barrio, no desde la monumentalidad, sino a partir de un lenguaje contemporáneo, sobrio y cercano que dialoga con la vida cotidiana de la comunidad. Su arquitectura reinterpreta el carácter religioso desde la síntesis y la claridad espacial, construyendo un espacio de recogimiento accesible y reconocible. De este modo, la capilla se convierte en un lugar de encuentro que acerca a las personas a la Iglesia, fortaleciendo el vínculo comunitario y aportando al barrio un referente arquitectónico con identidad propia. Una arquitectura que, desde la claridad y la contemporaneidad, trasciende lo religioso para integrarse plenamente a la vida del barrio.







