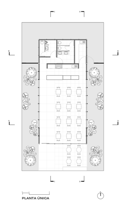
El proyecto Minimal Coffee se concibe desde una arquitectura de lo esencial, donde la elementalidad, el rigor y el orden estructuran cada decisión de diseño. El espacio se resuelve como un único ámbito claro, neutro y preciso, deliberadamente liberado de lo superfluo, para que el verdadero protagonista sea el producto: el café. La altura del espacio, la limpieza formal y la claridad de su configuración refuerzan esta intención, generando una atmósfera contenida pero expresiva, capaz de enaltecer la experiencia sensorial y el carácter ritual asociado al consumo.
Desde una impronta contemporánea, el proyecto no busca responder a una moda pasajera ni a una estética circunstancial, sino que aspira a la atemporalidad a partir de un sistema de producción claro, racional y coherente. La precisión constructiva, la economía de recursos y la lógica del sistema permiten que el espacio mantenga su vigencia más allá del presente, entendiendo la contemporaneidad no como estilo, sino como una manera consciente, crítica y duradera de hacer arquitectura.
El sistema constructivo se apoya en una estructura desmontable de steel framing, entendida no solo como una solución técnica eficiente, sino como una parte constitutiva del proyecto arquitectónico. Este sistema posibilita una ejecución rápida, precisa y controlada, optimizando tiempos y recursos sin comprometer la calidad espacial ni constructiva. Al mismo tiempo, la condición desmontable refuerza el carácter atemporal y adaptable del proyecto, permitiendo su traslado, ampliación o reconfiguración sin perder identidad ni coherencia formal.
De este modo, Minimal Coffee se consolida como una arquitectura clara y honesta, donde el orden, la técnica y la precisión se articulan para construir un espacio esencial, contemporáneo y capaz de perdurar. Una obra que demuestra que la simplicidad, cuando es rigurosa, puede convertirse en una herramienta poderosa para intensificar la experiencia del habitar y del encuentro cotidiano.





