El proyecto se encuentra en una zona próxima a un eje de crecimiento vertical de la ciudad, su acceso principal del lado norte se encuentra sobre una calle y se proyecta en una etapa futura hacia la avenida América ubicada en la parte posterior sur, crece lo necesario en sentido vertical para no exceder la cantidad de niveles que perjudicarían el funcionamiento y su eficiencia; es parte de la renovación de la imagen urbana prevista para la zona.
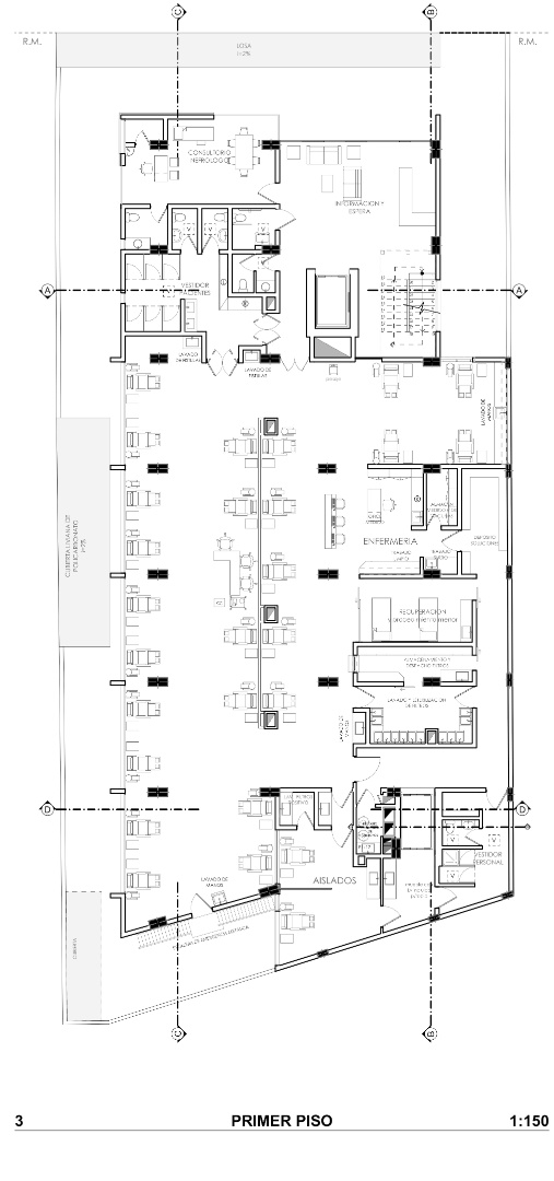
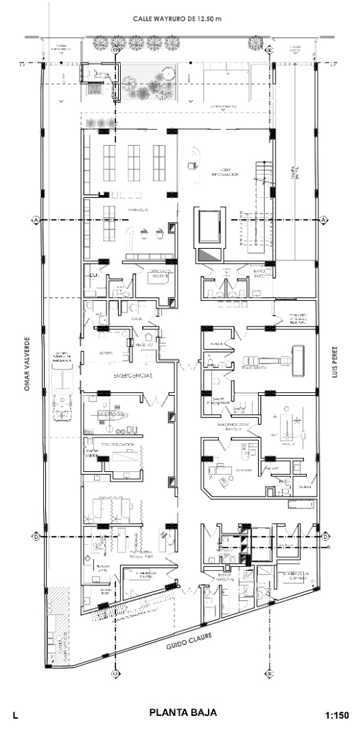
La clínica, de acuerdo al manual de categorización de hospitales de segundo nivel, cuenta con los servicios principales de acuerdo a su categoría: emergencias, imagenología, laboratorio, pabellón quirúrgico, hospital de día (endoscopía y urología), internación, terapia intensiva, terapia intermedia, central de esterilización para autoclave y óxido de etileno y ambientes de apoyo al funcionamiento: alimentación, auditorio, depósitos intermedios y finales de residuos, lavandería, servicios sanitarios, salas de equipos: EE, trafo, data center, planta de pretratamiento de aguas, planta de ósmosis inversa, salas de espera, y administración; adicionalmente cuenta con la unidad de hemodiálisis más grande de la ciudad ubicada en un nivel exclusivo como parte importante del programa renal.
El proyecto ha sido producido desde la complejidad programática y funcional propia de un equipamiento hospitalario, las restricciones que comúnmente suelen ser las dispuestas a una resolución en este caso particularizan la expresión de los elementos que hacen a una arquitectura de servicios destinada, conceptualmente, a mostrar una rigidez proyectual. La disposición aleatoria de elementos en fachada, así como la altura de niveles que le dan la escala al edificio son producto de la variación del requerimiento ambiental de los espacios clínicos y del pleno técnico que debe contener una cantidad importante de sistemas de abastecimiento, comunicación y climatización.





