El valle de Los Sauces muy próximo al Valle de la Escondida, es un vecindario cerrado de clase media alta conformado por viviendas unifamiliares en un entorno montañoso contando con impresionantes vistas a la ciudad de La Paz. Aproximadamente sobre los 3300 msnm, la temperatura promedio anual varía entre los 2°C y los 17°C lo cual genera que la arquitectura busque la mejor orientación solar como en la mayoría de proyectos en nuestra ciudad.
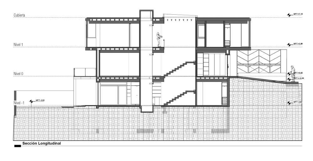
El terreno cuenta con un desnivel de aproximadamente 4m del punto más bajo a la cota +/-0.00 el cual generó la oportunidad de desarrollar la casa en 3 niveles, con un nivel “subsuelo” por debajo de la cota +/-0.00 y dos niveles por sobre la misma.
El programa requerido por el cliente era:
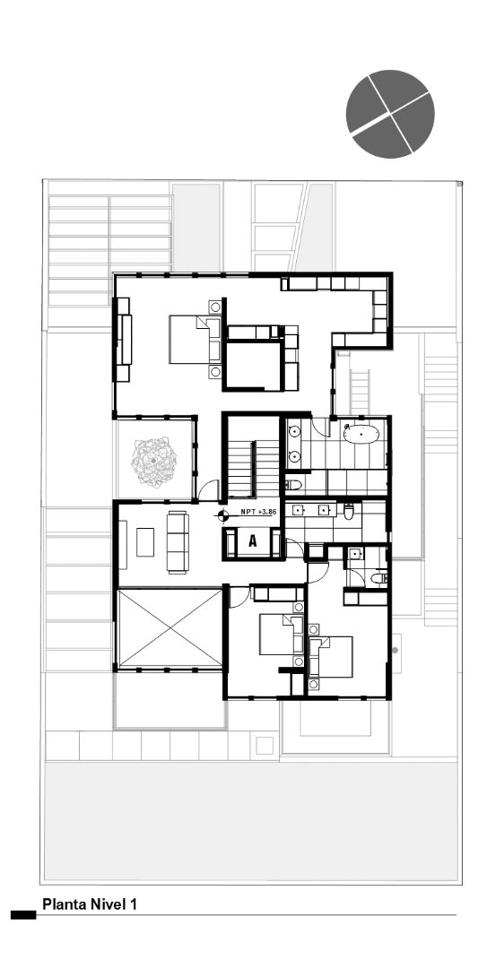
Área Privada (Nivel 1): 3 Dormitorios, Principal con vestidor amplio y baño. Un secundario con baño, y el tercero con baño compartido con la Sala Familiar.
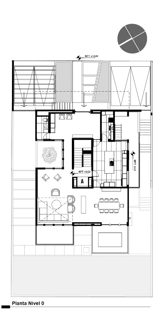
Area Social-Privada (Nivel 0): Recibidor, baño de visitas, cocina principal y cocina de frituras, ante sala, sala, comedor, balcón mirador.
Área Social (Nivel -1): Oficina, Área de juegos, Dormitorio de visitas, Bar Parrillero, Showroom de motocicletas y Áreas de servicio. Contar con 6 parqueos semicubiertos y con ascensor para 4 personas.
En base a la disposición y orientación del lote de 540m2 (18x30) se planteó una rejilla de 1.20x1.20 de la cual surgieron cuatro ejes estructurales longitudinales y cinco ejes estructurales transversales, en base a la misma modulación es que se planteó el programa requerido por el cliente, ubicando las áreas privadas y sociales a la orientación noroeste, contando estas con luz solar durante la mañana y tarde, así como las áreas de servicio y húmedas al sureste. Todos los ambientes cuentan ventilación natural.
La fachada de la casa se caracteriza por mostrar la estructura que la soporta en base a la modulación inicial propuesta delimitando así los ventanales, además de implementar el uso de la piedra natural para revestir ciertos elementos tanto en exterior como interior emulando así el contexto montañoso que la alberga, también se utiliza revoque y revestimiento de aluminio compuesto realizando buñas horizontales en base a la rejilla de 1.20x1.20 y entre estas realizando buñas con líneas diagonales abstrayendo las formas de los picos montañosos del entorno.
Así como en el exterior, en interiores se ve parte de la estructura portante de la casa y los elementos de piedra, para contrastar los tonos blancos de los muros y los cielos se implementa el uso de madera natural en forma de ripados, forrando todo el núcleo central, (escaleras, ascensor).
En cuanto a espacialidad se generan tragaluces en el núcleo de escaleras, el cual ilumina y calienta de manera eficiente toda la vivienda, también se generan tragaluces en baños.
Un elemento importante es la doble altura en la sala, ubicada de manera intencional al noroeste para que esta reciba el sol de tarde, así también funcione como elemento disipador del calor natural, además de este servir de mirador interior hacia el exterior de montañas y la ciudad a lo lejos.
El proceso de diseño es sencillo a través de una rejilla de 1.20x1.20, después por la cual se realizan adiciones y sustracciones al volumen es que los ejes estructurales, la funcionalidad (asoleamiento, ventilación) y la fachada conforman un solo sistema arquitectónico.
A través de la sustracción es que se logran elementos claves en el proyecto como ser los vacíos aire luz y/o patios interiores, los cuales generan privacidad (ya que no se abren vanos directos hacia los vecinos), asoleamiento directo al norte, ventilación cruzada y visuales a elementos de vegetación. La estructura corresponde a una vivienda. Su sistema estructural está conformado por losas sin vigas apoyadas sobre columnas y muros de corte. El detallado del acero de refuerzo ha sido realizado conforme a las recomendaciones establecidas en la norma NBDS 2023.
La edificación cuenta con losas alivianadas o casetonadas, armadas en dos direcciones en el nivel de ingreso. En la parte frontal, donde se presenta el volado, se emplean losas llenas, mientras que en la parte posterior se mantienen las losas alivianadas en dos direcciones. En la zona central se dispone un núcleo estructural destinado a las escaleras y al ascensor, el cual cumple además la función de dividir los ambientes y los tipos de losa empleados. Debido a la topografía del terreno y con el objetivo de optimizar su aprovechamiento, se proyecta un muro de hormigón en la parte frontal de la estructura. Este muro forma parte integral del sistema estructural, encontrándose restringido en su parte superior por la losa del primer nivel y en su parte inferior por las fundaciones correspondientes. Las fundaciones se resuelven mediante zapatas aisladas, las cuales se encuentran arriostradas entre sí con el fin de mejorar la interacción y el comportamiento conjunto de los elementos estructurales.




