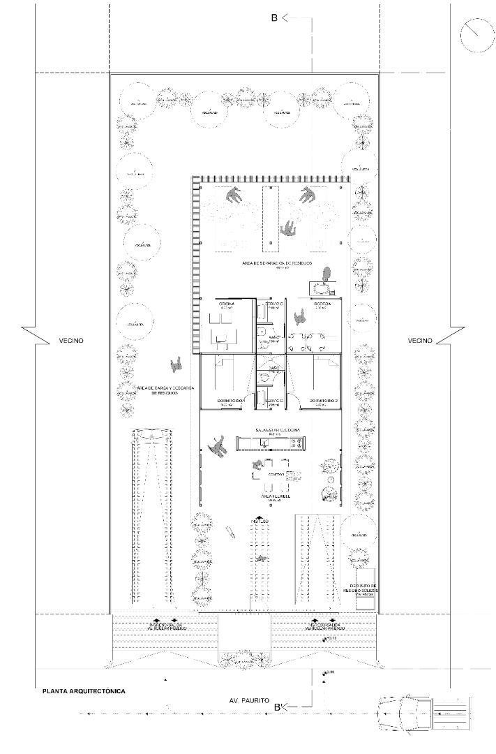
El proyecto se plantea como una respuesta técnica y social a la ciudad de Santa Cruz de la Sierra, en la periferia del ex-vertedero Normandía. Tras la clausura del vertedero y la subsanación de la superficie, la intervención se enfoca en proyectar viviendas dignas y permanentes para 18 familias recicladoras (centros de acopio) identificadas. El relevamiento territorial evidenció áreas de trabajo y vivienda improvisadas con un desorden espacial crítico, pero a su vez, una oportunidad estratégica: la abundancia de residuos plásticos de polipropileno (PP) sin reutilización final, responsables de la degradación ambiental urbana. El usuario principal corresponde a familias que, con el tiempo, se consolidan como familias extensas con un único patrimonio, condición recurrente en Latinoamérica.
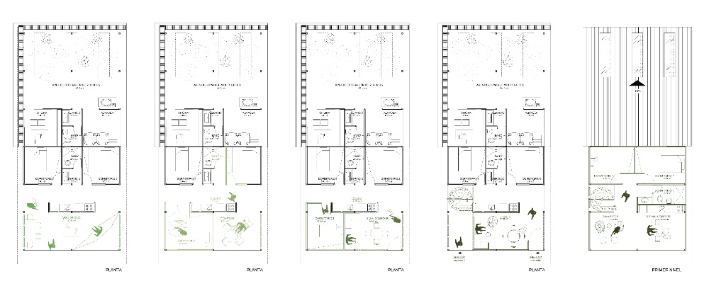
El proyecto, en este contexto, no se propone como solución definitiva, sino como un proceso abierto capaz de crecer, adaptarse y transformarse junto a quienes la habitan. La vivienda se define como un sistema productivo y progresivo, donde vivir, trabajar y reciclar se integran. El sistema constructivo mixto, basado en el bloquePLAS, vincula el oficio de clasificación y separación de residuos con la contribución y autoconstrucción del hábitat. Cada vivienda base captura aproximadamente siete toneladas de plástico reciclado inicial, transformando el desecho en arquitectura de referencia en construcción. Las estrategias pasivas, como la ventilación cruzada en cubierta y la implantación obligatoria de bordes filtrantes fitorremediadores, responden al clima y a la contaminación odorífera residual del entorno. A escala colectiva, el proyecto consolida una comunidad recicladora que revitaliza el tejido urbano mediante un pulmón verde central alineado a la normativa de la mancha urbana. Las viviendas actúan como infraestructura individual y grupal de saneamiento y empoderamiento, demostrando que el residuo gestionado puede convertirse en materia prima del progreso patrimonial y resignificando el habitar como herramienta activa de transformación urbana.







