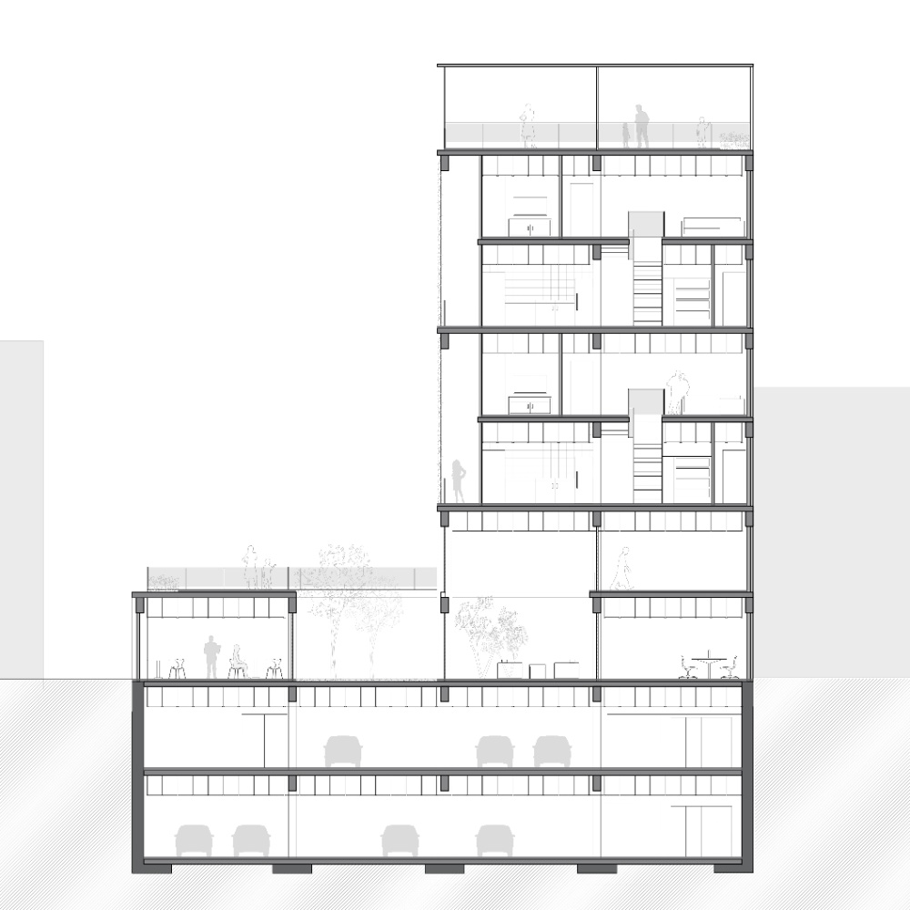
Torres Terra es un proyecto de bloques residenciales de seis niveles con comercio en planta baja, desarrollado en un área residencial de la ciudad de La Paz. La propuesta aborda la necesidad de densificar de manera responsable sectores urbanos ya consolidados buscando incorporar criterios actuales de sostenibilidad, integración social y calidad espacial.
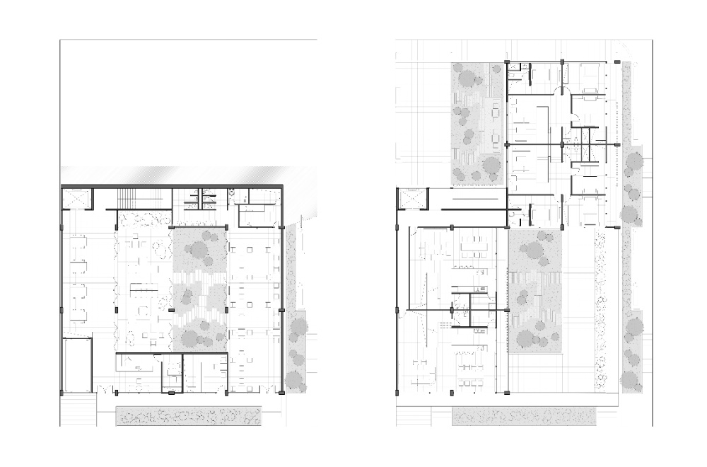
El proyecto se organiza a partir de bloques habitacionales replicables que se proponen extenderse a lo largo de todo el manzano, a través de implantaciones en espejo hacia los dos laterales, permitiendo generar una imagen urbana continua. En planta baja, se proponen usos comerciales (como una cafetería abierta al público) y un espacio de coworking destinado a los residentes, promoviendo nuevas dinámicas de interacción. Estos usos se articulan mediante un patio central que funciona como núcleo integrador del conjunto a través de puertas corredizas de malla de fibra de vidrio, que permiten una apertura total del espacio, reforzando la continuidad interior–exterior.
Como una de las estrategias principales del proyecto se destina parte del terreno al uso público, generando corredores urbanos intermedios ajardinados que actúan como conectores peatonales y ambientales. Estos espacios no solo mejoran la permeabilidad del tejido urbano, sino que también aportan áreas de encuentro y descanso para los vecinos, incrementando su calidad de vida.
En los niveles superiores se desarrollan departamentos tipo dúplex que incorporan muros verdes en sus balcones. Estos se conforman mediante plantas trepadoras guiadas por cables tensados de acero, aprovechando la verticalidad del edificio y aportando beneficios ambientales como control solar, mejora del microclima y mayor privacidad para las unidades habitacionales.
Torres Terra propone un modelo habitacional mixto donde arquitectura, naturaleza y ciudad dialogan para construir un entorno residencial sostenible.




