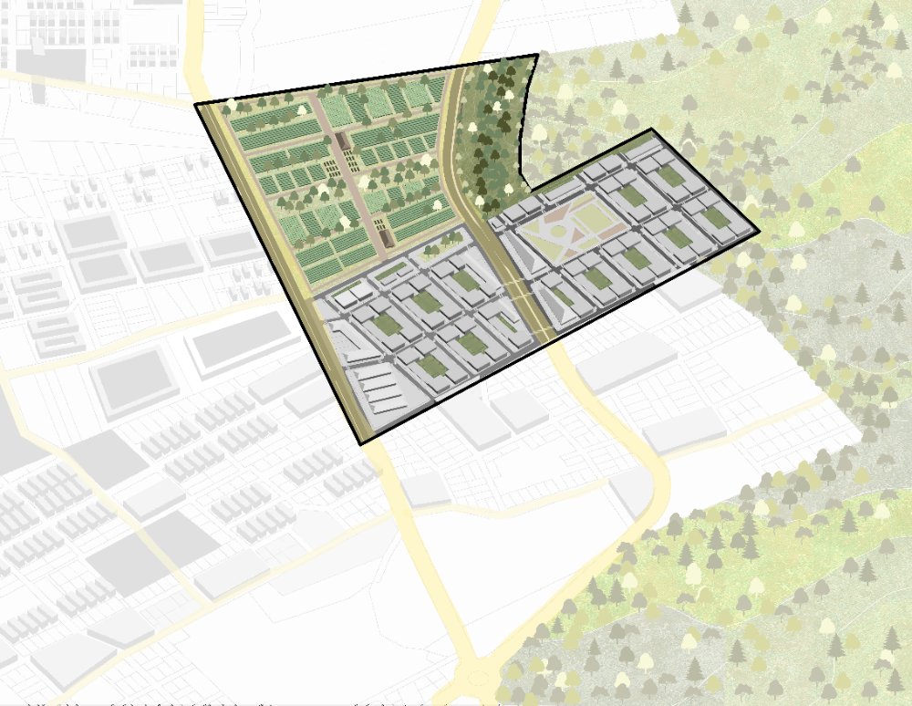
Tejido Vivo Amazónico propone un modelo replicable de ciudad amazónica a escala media, emplazado sobre un borde urbano de 32.7 hectáreas en Tena, Napo, Ecuador. El proyecto responde a la necesidad de contener los patrones de crecimiento acelerado y la fragmentación del paisaje y del tejido social, reconociendo al territorio como un sistema vivo y operativo. La propuesta prioriza la centralidad productiva y la regeneración ecológica, consolidándose como una comunidad autosuficiente basada en economía circular, mercados locales y tipologías de vivienda sostenibles adaptadas al contexto amazónico.
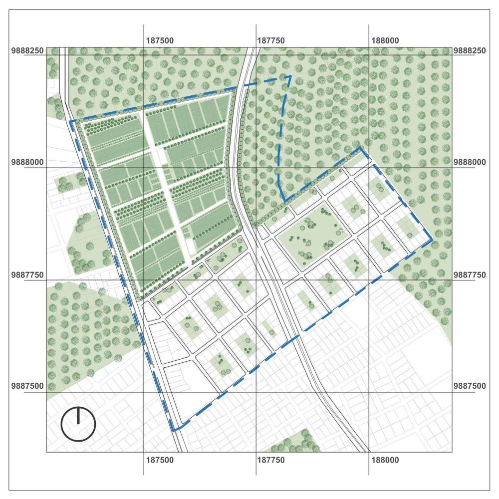
El desarrollo urbanístico se organiza en tres unidades funcionales: un sector productivo, una franja cívico-comunitaria central y un sector residencial. El sector residencial se desarrolla sobre una traza en damero ortogonal que articula manzanas residenciales con viviendas compactas y flexibles, organizadas en torno a patios colectivos. La franja cívica concentra centros educativos, espacios de innovación, plazas comunitarias y áreas de capacitación, funcionando como núcleo de encuentro social y como transición entre el sector residencial y el productivo. Los mercados se localizan sobre las vías troncales, garantizando la conectividad comercial con la ciudad y el acceso directo de los productores al mercado urbano.
El sector productivo se estructura mediante áreas de policultivos, sistemas de agroforestación y un área de selva amazónica conservada. Los policultivos diversifican la producción, fortalecen la resiliencia ecológica y mejoran la fertilidad del suelo. La agroforestación integra especies nativas y cultivos alimentarios como estrategia de transición ecológica. El área de selva se mantiene intocada como reserva activa de biodiversidad y soporte ambiental del sistema urbano.
Con capacidad para albergar aproximadamente 280 familias, el proyecto se consolida como un modelo resiliente y replicable que redefine el desarrollo urbano en ecosistemas sensibles y configura un nodo vivo donde la selva y la vida urbana coexisten en equilibrio.
El proyecto “Tejido Vivo Amazónico” fue distinguido con Mención de Honor en la categoría “Participación Institucional y Social” (4.º lugar) en el Concurso Internacional Bordes Urbanos Amazónicos, y publicado en el libro Bordes Urbanos Amazónicos de FLACSO Ecuador y el Observatorio para la Urbanización Amazónica (2024).




