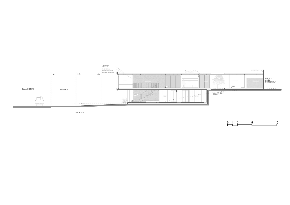
La Casa Mos fue concebida buscando un diálogo ininterrumpido y armónico entre la arquitectura y su entorno inmediato. El proyecto se asienta sobre un terreno de 741,88 m² que presenta dos condicionantes fundamentales: un desnivel topográfico natural de tres metros entre el nivel de calle y el fondo del lote, y la existencia de dos imponentes árboles de la especie “Cuchi” que dominan el corazón del predio.
El respeto absoluto por la topografía original y la preservación de la vegetación dictaron las pautas del diseño. Volumétricamente, la vivienda se resuelve como un monobloque de dos niveles que se desarrolla aprovechando la longitud del terreno, y es atravesado por un plano horizontal a modo de pórtico. La Planta Baja actúa como basamento, introduciéndose parcialmente en el terreno en su sector posterior; alberga el ingreso y un foyer distribuidor hacia la Planta Alta y hacia el área íntima de los dormitorios, configurando el sector más reservado, fresco y silencioso de la vivienda.
La Planta Alta, destinada al área social y servicios, ofrece una versatilidad de uso única. Se puede acceder a ella mediante la escalera interior o directamente a través de los jardines exteriores. Esta conexión vincula el interior con el área social al aire libre ubicada en la parte posterior (cota +3m), una estrategia que integra la vida doméstica con las copas de los árboles, brindando amplitud visual y una atmósfera de refugio natural.
La respuesta bioclimática es contundente: el monobloque se cierra casi completamente al poniente, donde la circulación lineal funciona como un eficiente colchón térmico que protege los ambientes interiores (dormitorios, cocina y estudio). En contrapartida, la casa se abre hacia los árboles, aprovechándolos como una cortina vegetal.
Con una materialidad honesta de ladrillo visto, hormigón, madera, vidrio y metal, la obra consolida una estética cálida y atemporal.




