Concepto general: La vivienda se concibe como un refugio de introspección, un espacio donde la escritura, la lectura y la contemplación se convierten en actos cotidianos. El proyecto toma como metáfora principal la acumulación de libros, entendidos no solo como objetos, sino como contenedores de memoria, tiempo y pensamiento. Esta idea se traduce arquitectónicamente en la superposición y desplazamiento de volúmenes, evocando una pila de libros apilados de manera aparentemente espontánea, pero cuidadosamente equilibrada.
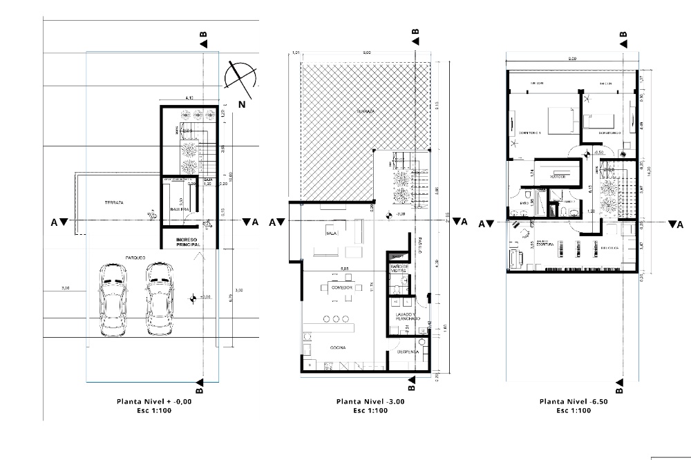
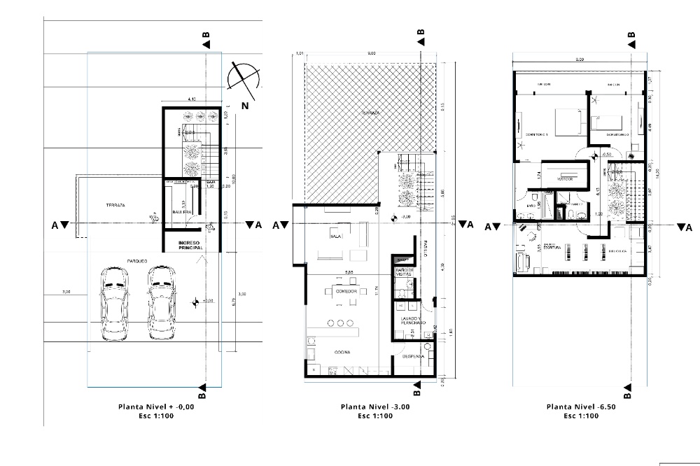
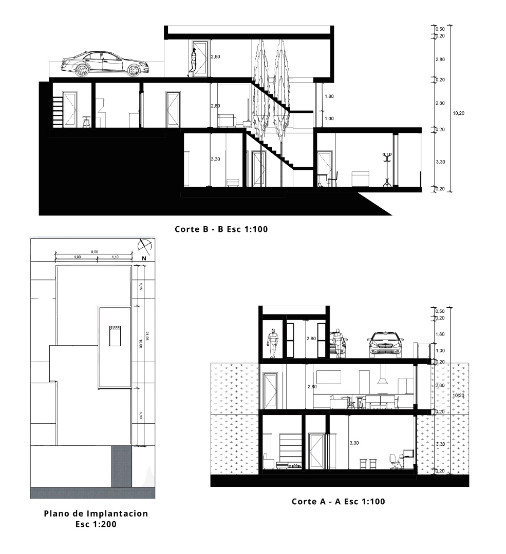
Ubicación y contexto: La casa se emplaza en la ciudad de La Paz, Bolivia, en la zona Alto Gramadal – Bajo Següencoma, un sector caracterizado por su topografía accidentada y amplias visuales hacia el paisaje urbano paceño. El proyecto se adapta a la pendiente natural del terreno, buscando minimizar el impacto sobre el paisaje y aprovechar las vistas, la orientación solar y la relación directa con el jardín. La implantación escalonada permite que cada nivel tenga una relación directa con el exterior, generando terrazas, balcones y espacios de transición que refuerzan la conexión con la naturaleza.
Idea formal y espacial: La volumetría se resuelve mediante cajas ortogonales desplazadas, que se apoyan y sobresalen unas sobre otras, generando voladizos, sombras y recorridos visuales dinámicos. Esta composición responde tanto al concepto simbólico de los libros apilados como a una estrategia funcional: cada volumen alberga un uso específico, claramente definido, pero integrado al conjunto.
Materialidad y atmósfera: La materialidad y atmósfera del proyecto se definen por un lenguaje contemporáneo que logra ser, simultáneamente, limpio y acogedor. Al interior, el uso de materiales naturales como la madera en los suelos establece una continuidad visual sobria y elegante. El mobiliario de líneas modernas refuerza esta estética sin sacrificar la sensación de un hogar vivido, alejándose de la rigidez formal para abrazar la comodidad.
La iluminación natural es la verdadera protagonista: generosos vanos acristalados no solo bañan los espacios de luz, sino que enmarcan el paisaje urbano y las montañas como si fueran lienzos vivos.
Relación con el paisaje: La vivienda no se impone al entorno, sino que dialoga con la topografía y la vegetación existente. Los volúmenes en voladizo permiten que el jardín fluya por debajo de la casa, generando sombras, recorridos y espacios de contemplación. El proyecto entiende el paisaje como una extensión del espacio interior, fundamental para el bienestar emocional de la usuaria.








