Vivienda Solaris un proyecto de vivienda unifamiliar que busca priorizar el bienestar y la funcionalidad. Ubicado en el barrio Las Palmas en el Distrito 12 donde su ubicación estratégica destaca por la proximidad a diversos equipamientos urbanos y servicios, que consolidad un entorno de habitabilidad y confort. Su ubicación estratégica en el terreno responde a las condiciones climáticas y la orientación solar predominante.
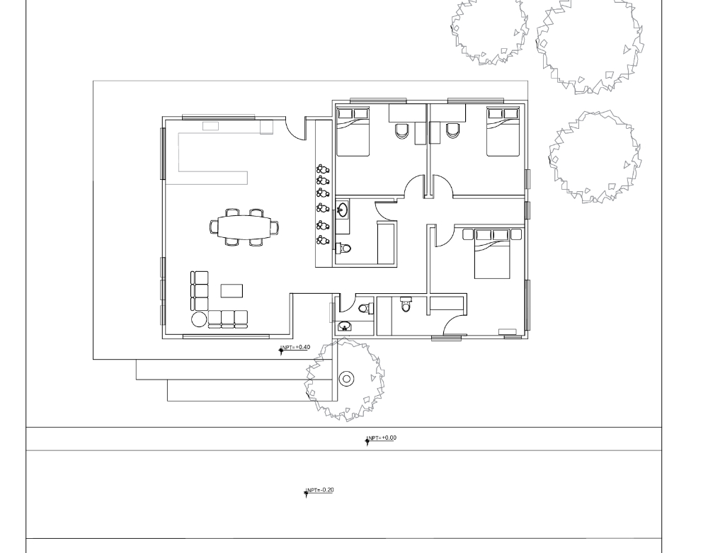
El diseño se desarrolla bajo el concepto de aprovechar la iluminación natural y la ventilación cruzada se convierten los elementos importantes. La vivienda busca optimizar el ingreso de la luz solar durante el día y generar espacios interiores cálidos, flexibles y confortables. En la vivienda familiar en las áreas sociales concentra espacios como la sal, comedor y cocina, planteados de una forma integrada para favorecer la convivencia, las áreas privadas de los dormitorios garantizan la privacidad y el confort.
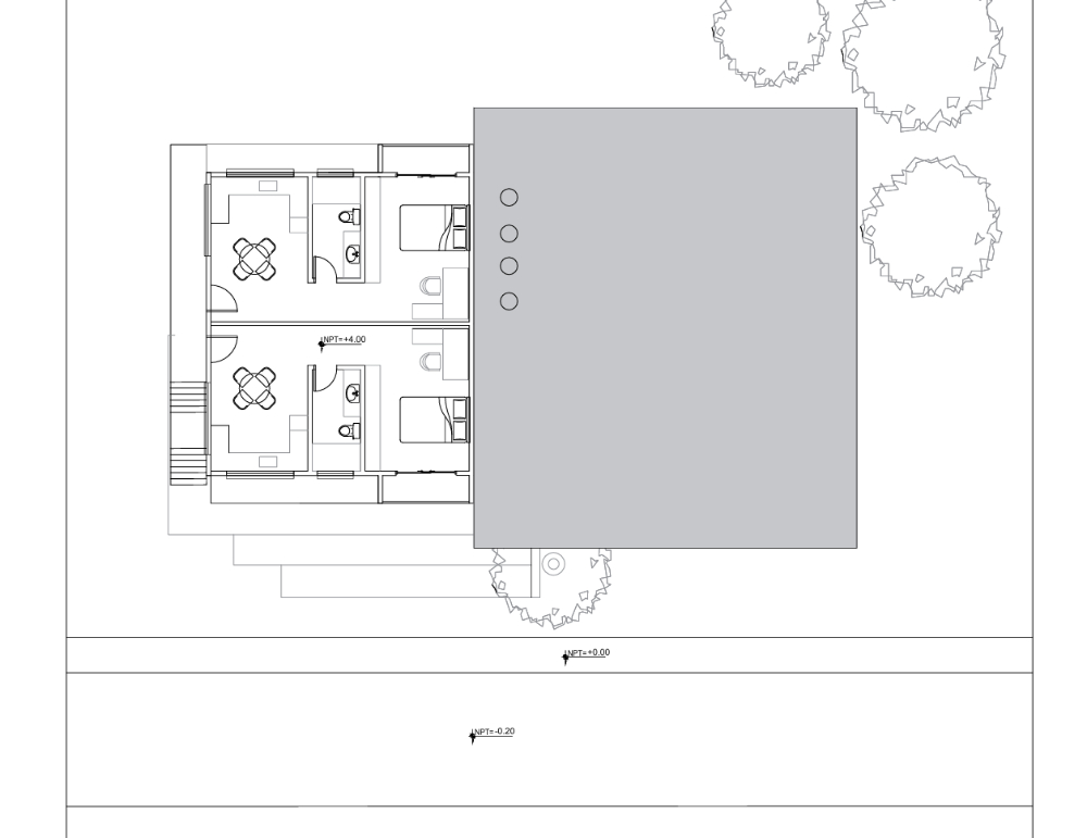
Los monoambientes en la parte superior integra en un solo ambiente las funciones de descanso y alimentación, optimizando el uso del espacio sin perder confort ni calidad espacial, esta tipología responde a las necesidades de usuarios individuales o pareja. Asimismo, la disposición de aperturas estratégicas asegura una adecuada iluminación natural y ventilación cruzada, alineada con el concepto general que define a la Vivienda Solaris.
Vivienda Solaris se plantea como una propuesta arquitectónica integral que combina la funcionalidad, iluminación natural y calidad espacial, ofreciendo una solución habitacional orientada al confort de las personas.


