El Centro infantil Santa Teresita de Jesús se emplaza en la ciudad de Yapacaní, departamento de Santa Cruz. El proyecto surge de la colaboración entre la institución Chalice y los Salesianos en Bolivia, con el objetivo de ofrecer un espacio seguro, afectivo y estimulante para niños menores de diez años, en un contexto urbano con alta demanda de infraestructura educativa y comunitaria.
Se desarrolla como un espacio de cuidado, aprendizaje y contención para la primera Infancia en el municipio de Yapacent, en la provincia Ichilo del departamento de Santa Cruz - Bolivia, formando parte del programa CHALICE, organización católica canadiense de patrocinio infantil con presencia en América Latina, Africa y Asia.
El proyecto responde a la necesidad de un equipamiento comunitario que brinde condiciones dignas, seguras y estimulantes para los niños del lugar, integrando arquitectura, educación y bienestar social. La propuesta espacial se organiza de manera clara y funcional, priorizando la escala infantil, la iluminación natural y la relación visual entre los distintos ambientes.
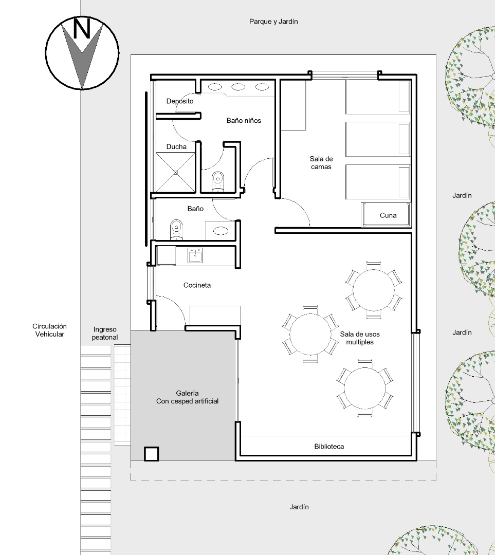
El centro infantil cuenta con una sala de uso múltiple que incorpora una zona de biblioteca y un mural artistico que fortalece el carácter lúdico y edueativo del espacio. Se complementa con una cocineta, baños adaptados para niños, un dormitorio con varias camas destinado al descanso y un baño para el personal.
Ya construida, la obra se consolida como un referente comunitario, ofreciendo un entorno calido y protector donde la arquitectura se convierte en una herramienta de apoyo al desarrollo integral de la infancia.
Desde su concepción, la guardería trasciende la condición de edificio funcional para convertirse en un lugar de acogida, donde la arquitectura acompaña los procesos de aprendizaje, contención y desarrollo emocional de la infancia. El programa arquitectónico se organiza de manera clara y eficiente, integrando sala de estudio–comedor, cocineta, baños, dormitorio y un hall de ingreso que actúa como espacio de transición y bienvenida.
El proyecto se inserta en un terreno perteneciente a una congregación de hermanas religiosas con fuerte presencia social en la comunidad. En este marco, la guardería se concibe como un equipamiento flexible, capaz de adaptarse a usos comunitarios complementarios, como la formación de madres de familia mediante talleres y actividades de capacitación.
El conjunto se completa con áreas de recreación, jardines, una pequeña granja y la residencia de las hermanas, conformando un ecosistema comunitario. La cercanía a una capilla activa el predio como nodo de encuentro social y referencia urbana, demostrando cómo la arquitectura de calidad puede transformar la fisonomía del lugar desde una escala contenida.
El proyecto incorpora el arte como elemento identitario, mediante murales en cerámica y pintura, y aborda el confort térmico con estrategias pasivas acordes al clima cálido, optimizando las condiciones interiores.
El centro infantil Santa Teresita de Jesús expresa una arquitectura sensible, eficiente y comprometida, donde espacio, comunidad e infancia se entrelazan para construir futuro.




