La propuesta arquitectónica para el Centro de Capacitaciones Banco Sol se estructura a partir de la lectura sensible del sitio, donde la presencia de la piedra preexistente en el fondo del terreno constituye un elemento determinante del proyecto. Su imagen, textura y materialidad se asumen como componente irrenunciable, orientando la concepción volumétrica, constructiva y paisajística de la intervención, que busca integrarse de manera armónica y singular al entorno urbano inmediato.
El predio, ubicado en el barrio de Calacoto, presenta una geometría irregular, topografía accidentada y una normativa especial asociada al entorno consular, que limita la ocupación al 50% del lote y la altura a dos niveles. Estas condicionantes definen una implantación cuidadosa, con un volumen escalonado que se eleva hasta el segundo piso mediante retiros progresivos, preservando la escala del entorno y garantizando seguridad y estabilidad del suelo colindante.
La estrategia de ocupación aprovecha la pendiente longitudinal de la calle para definir un nivel de referencia único, optimizando circulaciones diferenciadas y minimizando los movimientos de tierra. El tratamiento del fondo del terreno, con una diferencia de altura cercana a ocho metros, se resuelve mediante muros de gaviones de piedra que cumplen una función estructural y paisajística, reforzando la identidad material del conjunto.
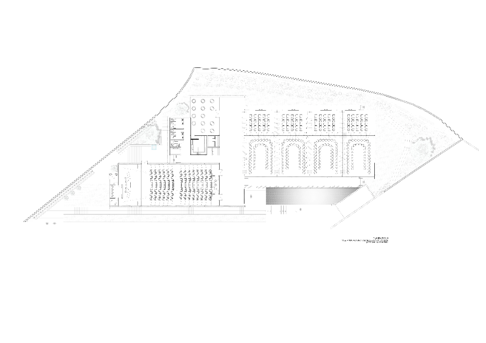
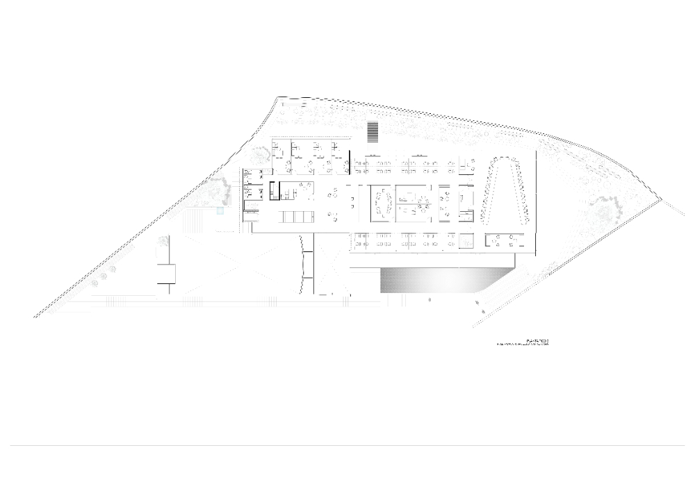
El edificio se organiza sobre una plataforma–basamento que jerarquiza el acceso y sostiene volúmenes longitudinales dispuestos paralelamente a la vía. La composición enfatiza la relación entre masa y transparencia: un auditorio de carácter robusto en primer plano y, en segundo término, un volumen de dos niveles más permeable que alberga áreas de capacitación y oficinas, articulados mediante patios, vacíos y espejos de agua.
Desde el punto de vista técnico–constructivo, la propuesta adopta un sistema mixto con estructura metálica modular, prefabricada y desmontable, complementada con piedra, madera y vidrio. Esta estrategia responde a criterios de sostenibilidad, eficiencia constructiva y economía circular, reduciendo la huella ambiental y asegurando una arquitectura honesta, durable y adaptable en el tiempo.










