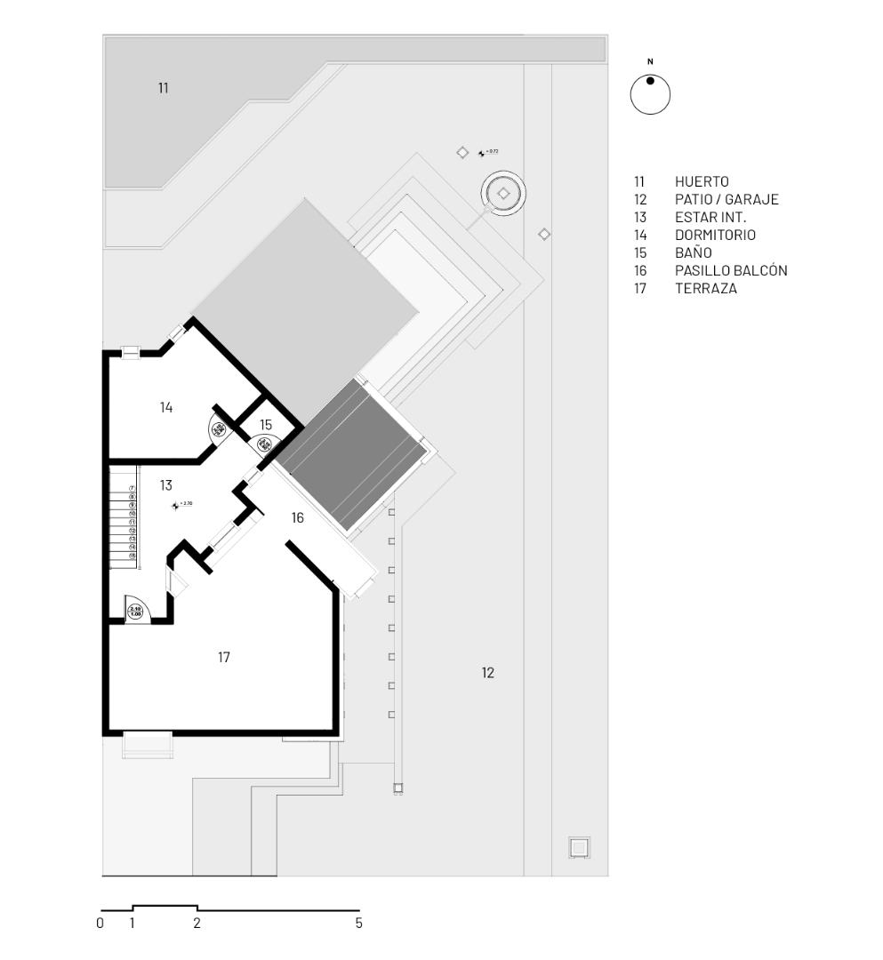
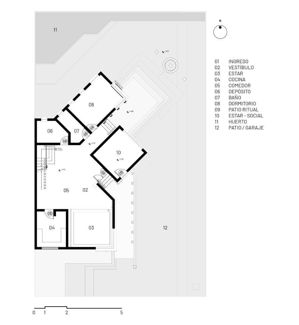
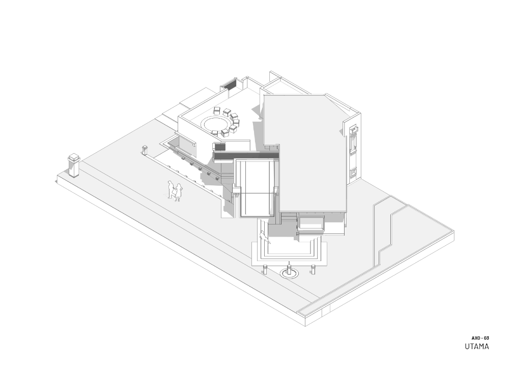
UTAMA es una propuesta arquitectónica en el altiplano, ubicado en el municipio de Laja, Bolivia, concebida para la familia Luna. Que materializa la cosmovisión andina aymara para el hábitat contemporáneo. Su fundamento es la tríada de las tres Pachas: Alaxpacha (cielo/cóndor), Akapacha (tierra/puma) y Manqhapacha (inframundo /serpiente). Esta estructura no solo dialoga con la espiritualidad, sino que le da sentido al espacio, uniendo al usuario con el territorio, el cielo y los ancestros en un entramado holístico. El sistema constructivo que conlleva este proyecto se realiza con tierra del lugar, utilizando adobe y tapial en un proceso de trabajo colaborativo donde se manifiesta el ayni; principio de reciprocidad comunitaria, donde el propio hecho de construir es un acto de regeneración social. El patio central reinterpreta como un templete semisubterráneo; espacio ancestral como el eje articulador de la vida familiar y colectiva.
El diseño arquitectónico recoge y traduce los códigos de la cultura Tiwanakota —geometría sagrada, ritmo y texturas—, en particular la pirámide de Akapana y los guardianes Chacha Pumas para hacer de UTAMA una traducción contemporánea de un legado ancestral, donde cada espacio, material y rito constructivo busca el equilibrio (Suma Qamaña) entre el ser humano y la Pachamama. UTAMA es un prototipo de habitar contemporáneo en el altiplano. Demuestra que es posible una arquitectura de vanguardia cultural que nace del diálogo respetuoso con la sabiduría ancestral, las tecnologías vernáculas y una ética profunda de sostenibilidad.


























