El proyecto se emplaza en la ciudad de Santa Cruz de la Sierra, en la zona del Urubó, donde la naturaleza y el clima redefinen constantemente las formas de habitar.
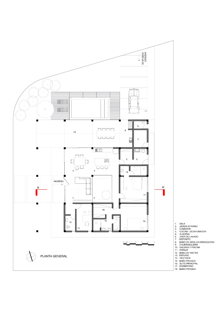
La Casa Uno se concibe como una reflexión arquitectónica sobre la estructura como generadora de espacio y orden, materializada en una casa unifamiliar desarrollada en una sola planta.
Inscrita dentro de los principios de la arquitectura moderna, aspira transmitir claridad formal y racionalidad constructiva.
La casa se organiza a partir de un sistema estructural legible que no se oculta asumiendo un rol protagónico que se convierte en el lenguaje principal del proyecto, definiendo la composición, el ritmo y la escala de los espacios, esto permite una configuración abierta y flexible, condición que favorece la articulación espacial sin jerarquías rígidas, promoviendo una experiencia de habitar fluida.
La relación entre interior y exterior es uno de los ejes centrales del proyecto, el jardín central se integra como vacío activo que atraviesa la vivienda, garantizando iluminación natural, ventilación cruzada y una permanente conexión visual con el paisaje.
La materialidad se resuelve mediante una paleta sobria, donde el hormigón, la madera y el vidrio dialogan para resaltar la estructura y aportar calidez.
El proyecto se plantea como una experiencia sensible y consciente, donde la estructura no solo sostiene, sino que construye el sentido del habitar.










