Altus Tower “Donde la ciudad alcanza su punto más alto.” Ubicación y contexto: En 2022, el Gobierno Autónomo Municipal de Cochabamba aprobó la Ley 1184, la cual autoriza la construcción de edificaciones de hasta 32 pisos en los ejes de crecimiento vertical de la ciudad. La Avenida América, una de las arterias viales más importantes, se encuentra dentro de estas zonas normadas.
El proyecto se ubica en un punto estratégico de alta convergencia: la intersección de la Av. América (conector este-oeste) y la Av. Libertador (conector norte-centro). Esta última, además, ofrece continuidad al Paseo del Prado, un hito turístico clave. Por su ubicación privilegiada, el terreno es ideal para el desarrollo de un edificio de usos mixtos que responda al nuevo perfil metropolitano.
Diseño de Uso Mixto: El edificio se organiza en tres volúmenes dislocados y claramente diferenciados:
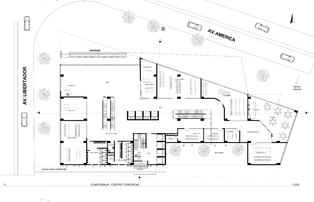
Base Peatonal y área comercial: Una planta baja abierta con grandes ventanales, que alberga locales comerciales e ingresos corporativos.
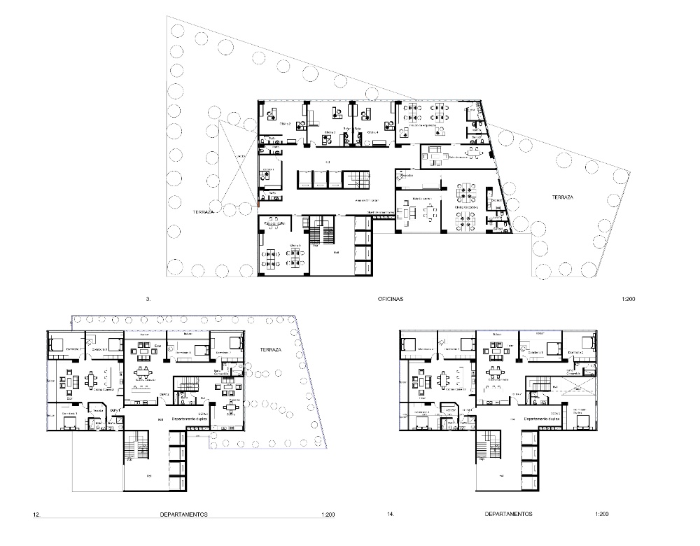
Cuerpo Medio: Un bloque robusto que albergar oficinas y servicios.
Torre Superior: Un volumen más esbelto y acristalado, destinado a viviendas de lujo que remata con una sección en voladizo (cantilever) muy moderna.
De esta manera, el nuevo edificio se erige como un hito arquitectónico de vanguardia. Su diseño de volúmenes superpuestos y fachadas de vidrio no solo maximizan las vistas panorámicas de la cordillera del Tunari, sino que redefine el skyline de la ciudad, convirtiéndose en el símbolo de la Cochabamba moderna, vertical y conectada.





