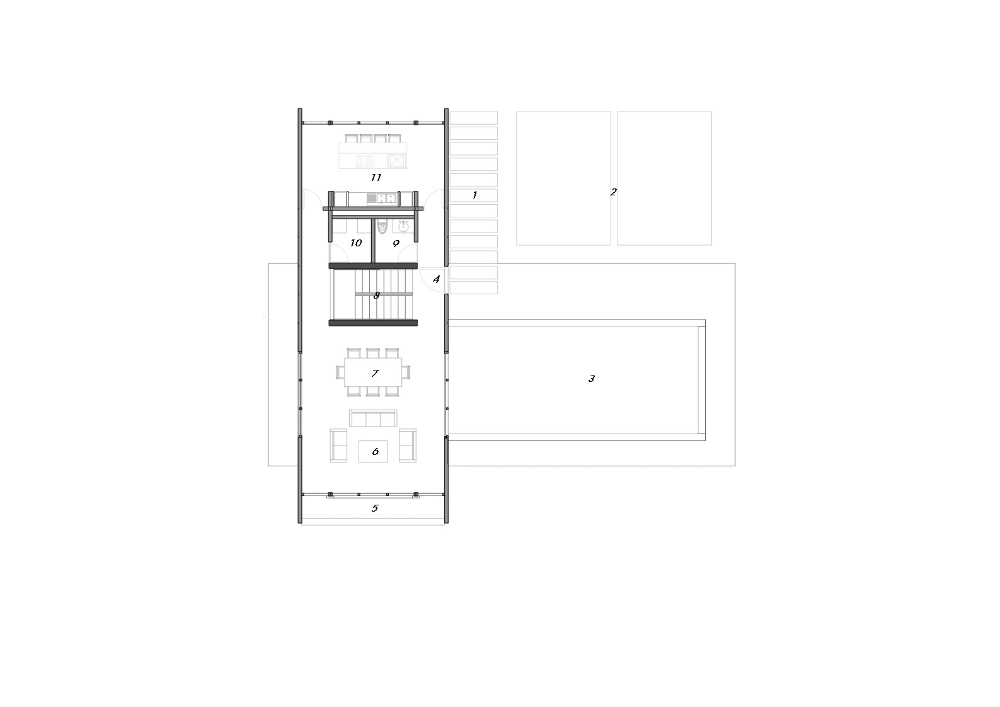
La Casa SP se concibe como una implantación precisa y coherente sobre el terreno, donde el edificio no busca imponerse al paisaje, sino que se desplaza y se posa con ligereza sobre la pendiente. La implantación responde a un análisis y lectura del paisaje, aprovechando la pendiente natural para generar un sistema de volúmenes perpendiculares y superpuestos que reducen el impacto visual y optimizan la relación con el entorno.
El edificio se compone a a partir de una estructura modulada, repetida y clara, el módulo ordena tanto la estructura como la envolvente. Este sistema modular permite una lectura ordenada del proyecto y refuerza la continuidad visual, disolviendo los límites entre interior y exterior mediante planos vidriados que se extienden y potencian las visuales del lugar.
La ligereza formal se expresa en el volumen superior, que se percibe como suspendido, enfatizando el desplazamiento horizontal y generando sombras que protegen y jerarquizan los espacios inferiores. La estructura, lejos de ser un elemento oculto, se manifiesta con claridad y coherencia, actuando como soporte físico y sincero del proyecto.
La materialidad sobria y controlada refuerza el carácter atemporal de la propuesta, estableciendo un diálogo equilibrado entre planos llenos, transparente, translucidos y vacíos. En conjunto, el proyecto propone una arquitectura de rigor, precisión y sensibilidad, donde cada decisión formal y constructiva responde a una lógica clara y contenida. La estructura no solo resuelve lo técnico, sino que ordena el espacio y define la expresión del conjunto, convirtiéndose en el hilo conductor entre forma, función y paisaje. La modulación permite flexibilidad y control, asegurando coherencia entre las partes y una lectura unitaria del proyecto.






