El edificio con 32 niveles tiene la finalidad de crear espacios de beneficio a la social brindando espacios de abastecimiento, de entretenimiento, de recreacion pasiva y activa asi mismo de residencia. Las caracteristicas espaciales empleadas en el proyecto consideran el uso multifuncional ordenado por sectores que contienen calidades de doble espacio en el area comercial, visuales de gran preferencia como en el restaurante y orientaciones bien empleadas en departamentos.
El proyecto plantea el diseño de un edificio híbrido de gran altura, concebido como una respuesta arquitectónica a la densificación urbana y a la necesidad de integrar múltiples actividades en un solo conjunto edificatorio. La propuesta busca optimizar el uso del suelo urbano, concentrando funciones comerciales, administrativas y residenciales en una estructura vertical organizada de manera clara y eficiente.
El edificio se concibe como un hito urbano, capaz de integrarse al contexto de la ciudad de Cochabamba mediante una imagen contemporánea, respetando las dinámicas urbanas existentes y aportando vitalidad al entorno inmediato.
IMPLANTACIÓN Y RELACIÓN CON EL CONTEXTO La implantación del edificio responde a las condiciones urbanas, climáticas y funcionales del contexto cochabambino. Se prioriza la relación directa del bloque inferior de uso comercial con el espacio público, favoreciendo la accesibilidad peatonal, la permeabilidad visual y la activación urbana. La volumetría escalonada por bloques permite una lectura clara de los distintos usos, mejorando la transición entre el espacio público y el privado, así como el asoleamiento y la ventilación natural en los niveles superiores.
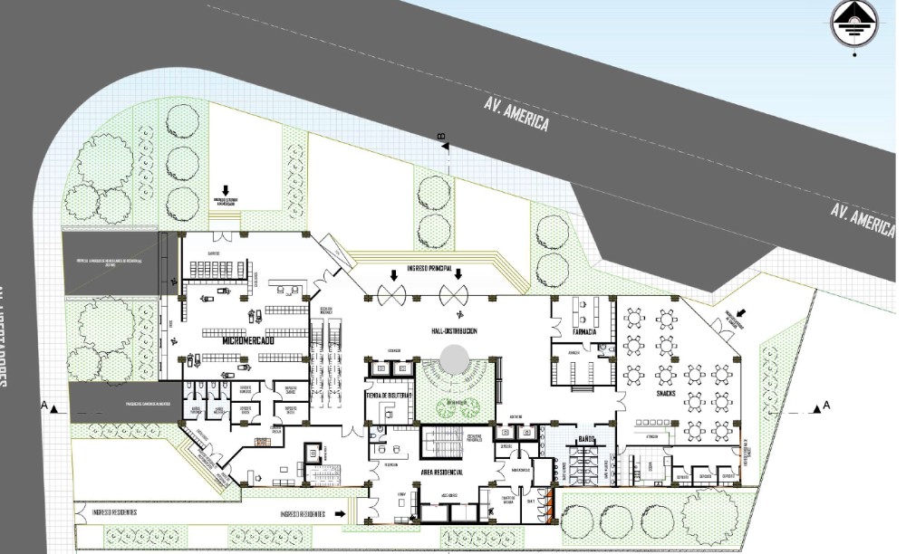
ORGANIZACIÓN FUNCIONAL El edificio se organiza en tres bloques funcionales claramente diferenciados, dispuestos de manera vertical: Bloque inferior – Uso comercial Ubicado en los primeros niveles del edificio, este bloque alberga áreas comerciales destinadas a locales, servicios y espacios de apoyo. Su diseño prioriza: Accesos directos desde la vía pública Espacios flexibles y modulables Alta permeabilidad visual Conexión fluida con áreas comunes
Bloque intermedio – Uso de oficinas El bloque intermedio está destinado a oficinas administrativas y profesionales. Se plantea una organización funcional eficiente, con plantas libres que permiten distintas configuraciones espaciales, garantizando: Iluminación y ventilación natural Circulaciones claras y jerarquizadas Separación funcional respecto a los otros usos
Bloque superior – Uso residencial El bloque superior está destinado a departamentos de vivienda multifamiliar. Este sector prioriza el confort, la privacidad y la calidad espacial, incorporando: Distribuciones funcionales Vistas privilegiadas de la ciudad Control solar y acústico Áreas comunes de uso residencial
CIRCULACIONES Y FLUJOS El proyecto contempla una clara diferenciación de circulaciones, garantizando el correcto funcionamiento del edificio: Circulaciones independientes para uso comercial, oficinas y vivienda Núcleos verticales diferenciados (ascensores y escaleras) Control de accesos según el tipo de usuario Rutas de evacuación conforme a criterios de seguridad
CRITERIOS DE DISEÑO ARQUITECTÓNICO Funcionalidad y flexibilidad El diseño prioriza plantas moduladas y estructuras regulares que permiten adaptabilidad a futuros cambios de uso, especialmente en las áreas comerciales y de oficinas.
Confort ambiental Se consideran criterios de asoleamiento, ventilación cruzada y control térmico, adecuados al clima de Cochabamba, buscando reducir el consumo energético y mejorar la habitabilidad.
Imagen arquitectónica La expresión formal del edificio responde a su condición de uso mixto, mediante un tratamiento volumétrico y de fachada que diferencia los bloques funcionales sin perder unidad compositiva.
SISTEMA ESTRUCTURAL Y CONSTRUCTIVO El edificio se proyecta con un sistema estructural de hormigón armado, adecuado para edificaciones en altura, garantizando estabilidad, resistencia sísmica y durabilidad. La modulación estructural permite compatibilizar los distintos usos del edificio.
Los sistemas constructivos y materiales se seleccionan considerando criterios de seguridad, mantenimiento y eficiencia.
CRITERIOS DE SOSTENIBILIDAD El proyecto incorpora principios básicos de sostenibilidad urbana: Optimización del uso del suelo Aprovechamiento de iluminación natural Ventilación natural controlada Posible incorporación de áreas verdes y terrazas
SEGURIDAD Y NORMATIVA El diseño considera criterios de seguridad estructural, contra incendios y evacuación, acordes a normativas vigentes y a las exigencias propias de un edificio de gran altura y uso mixto.
CONCLUSIÓN El edificio híbrido propuesto constituye una solución arquitectónica integral para la ciudad de Cochabamba, combinando comercio, oficinas y vivienda en una sola estructura vertical. El proyecto responde a criterios de funcionalidad, eficiencia, flexibilidad y calidad espacial, aportando una propuesta contemporánea y académicamente sólida dentro del contexto urbano.

