El proyecto Hospital Pediátrico de Tercer Nivel Manuel Ascencio Villarroel surge como respuesta a una problemática histórica del sistema de salud de Cochabamba: la ausencia de una infraestructura propia y adecuada para la atención pediátrica de alta complejidad. Frente a esta realidad, la propuesta plantea un edificio capaz de resolver de manera integral las demandas médicas, técnicas y humanas propias de un equipamiento de alta complejidad.
Su organización espacial se concibe para minimizar el estrés infantil y promover el bienestar emocional, favoreciendo procesos de recuperación. Donde 14 de 16 pisos albergan vegetación, mientras se integran espacios de triple altura con jardines verticales, generando ambientes de contención, descanso y conexión con la naturaleza para pacientes y acompañantes. Logrando que el espacio abrace al usuario.
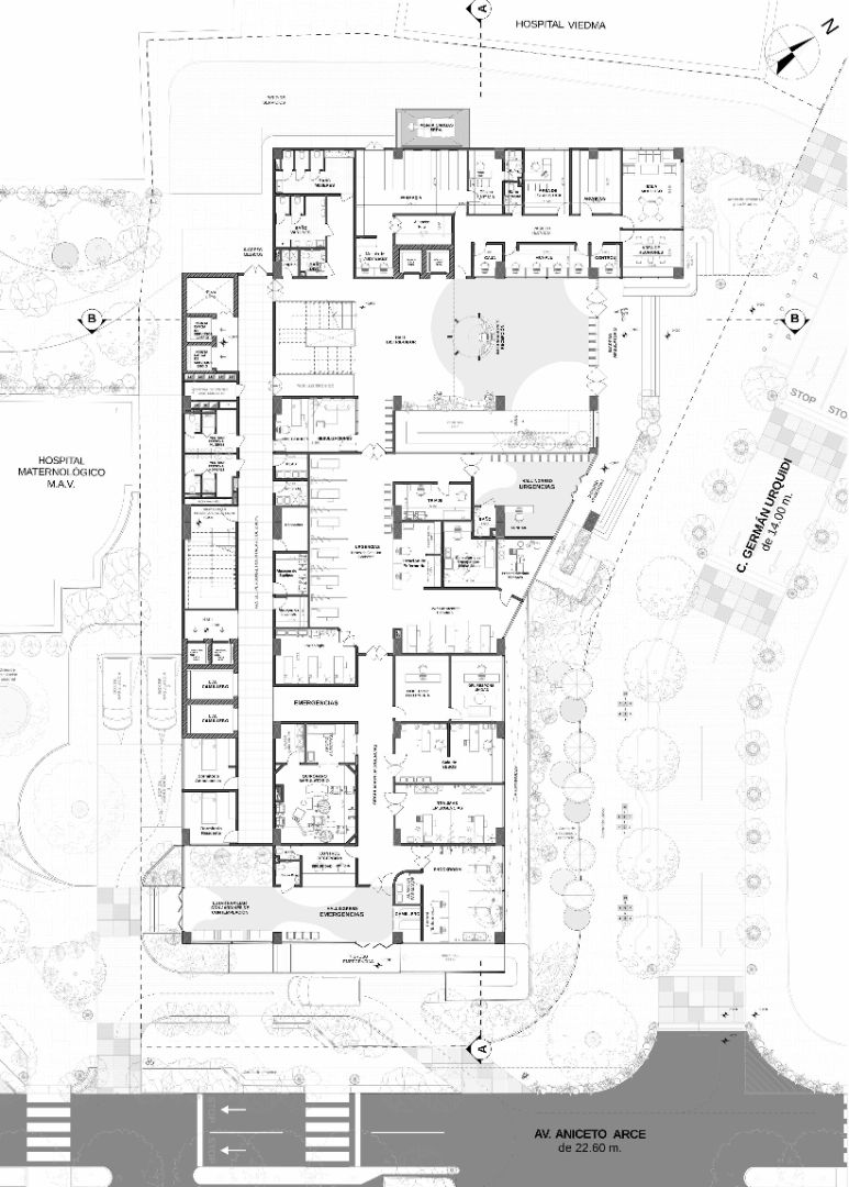
Funcionalmente, el proyecto adopta una configuración vertical como respuesta a las condicionantes del terreno, la normativa vigente y la magnitud del programa arquitectónico, basado en directrices de la OMS. Las 16 plantas se organizan en siete zonas principales: emergencias, ambulatoria, logística, servicios básicos, apoyo diagnóstico, quirófanos y hospitalización. La circulación se resuelve mediante núcleos verticales diferenciados por tipo de usuario, complementados por un eje horizontal en cada planta que separa flujos públicos y médicos, garantizando eficiencia operativa.
Su formulación morfológica responde a la relación entre función, entorno y bienestar: un basamento concentra las áreas de uso público, mientras que un cuello y una torre que albergan las funciones de mayor privacidad. La envolvente arquitectónica protege al edificio y a sus usuarios, proporcionando acondicionamiento térmico y visual.
La importancia del proyecto radica en su capacidad de ofrecer una infraestructura adecuada para la atención pediátrica de alta complejidad, mejorando la calidad de vida de pacientes, familias y personal de salud. Este proyecto está dedicado a los niños y sus familias, con la esperanza de reflejar cuidado, dignidad y humanidad.




