La Guardería Miguel Magone es un proyecto de arquitectura social destinado a niños entre 2 y 7 años, principalmente hijos de estudiantes y trabajadores del Centro Educativo Alternativo Miguel Magone, en Santa Cruz de la Sierra. La propuesta surge como respuesta a la necesidad de contar con un espacio seguro, digno y estimulante que acompañe los procesos de cuidado, aprendizaje y desarrollo integral en la primera infancia.
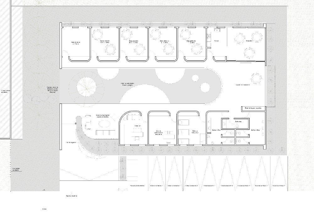
El proyecto se organiza en torno a un patio central, concebido como el corazón del conjunto y principal espacio de juego, encuentro y esparcimiento. Este vacío articulador permite una relación directa y continua entre aulas y ambientes de apoyo, generando claridad funcional, favoreciendo la supervisión permanente por parte del personal educativo. La disposición perimetral de los volúmenes refuerza la seguridad y promueve una experiencia espacial abierta y controlada, sin recurrir a soluciones restrictivas.
La materialidad juega un rol fundamental en la identidad del proyecto. Se prioriza el uso de cerámica, material noble y característico de la región, empleado en fachadas, pisos y detalles arquitectónicos. Además de su valor simbólico y cultural, la cerámica cumple funciones técnicas como aislamiento térmico, control solar y regulación de la ventilación mediante celosías, contribuyendo al confort climático del edificio.
El patio central incorpora una pérgola y un árbol que proporcionan sombra natural, haciendo del espacio un lugar confortable incluso durante las horas de mayor radiación solar. Los materiales del piso — caucho, pasto sintético y cerámica fueron seleccionados para estimular la motricidad y la percepción sensorial de los niños, permitiendo el uso del espacio descalzos y fomentando el aprendizaje a través de la experiencia.
La Guardería Miguel Magone entiende la arquitectura como un soporte activo del cuidado y la educación, donde el niño es la medida del espacio y la calidad arquitectónica se pone al servicio de la comunidad, fortaleciendo el vínculo entre arquitectura, contexto y vida cotidiana.






