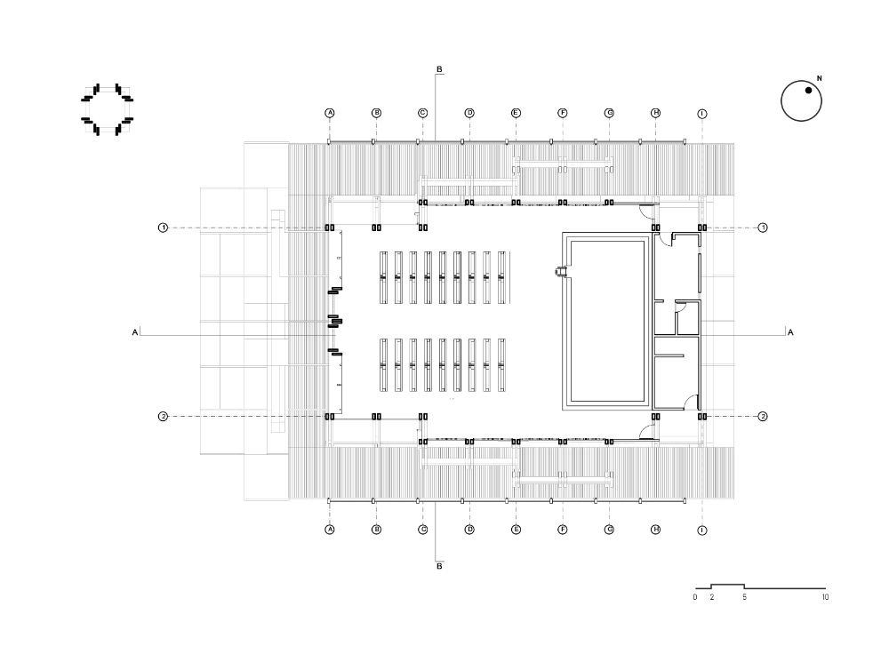
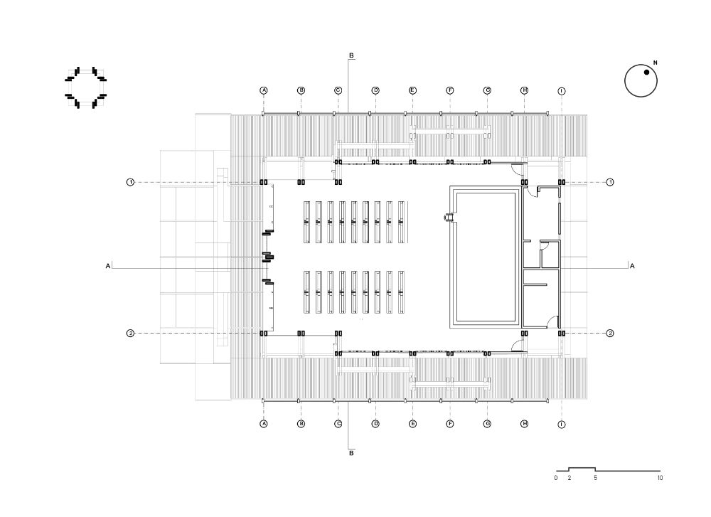
El proyecto se alza como una nueva capa arquitectónica, honesta y visionaria. Ubicado en el corazón de la localidad de San Javier, en el mismo terreno que albergó el templo misional de 1800 y la iglesia reconstruida desde 1988 que ahora se encuentra en estado de colapso. La propuesta dialoga directamente con sus vestigios: cimientos antiguos, bases de horcones y la huella exacta de la torre campanario histórica se preservan como umbrales sagrados entre tiempos.
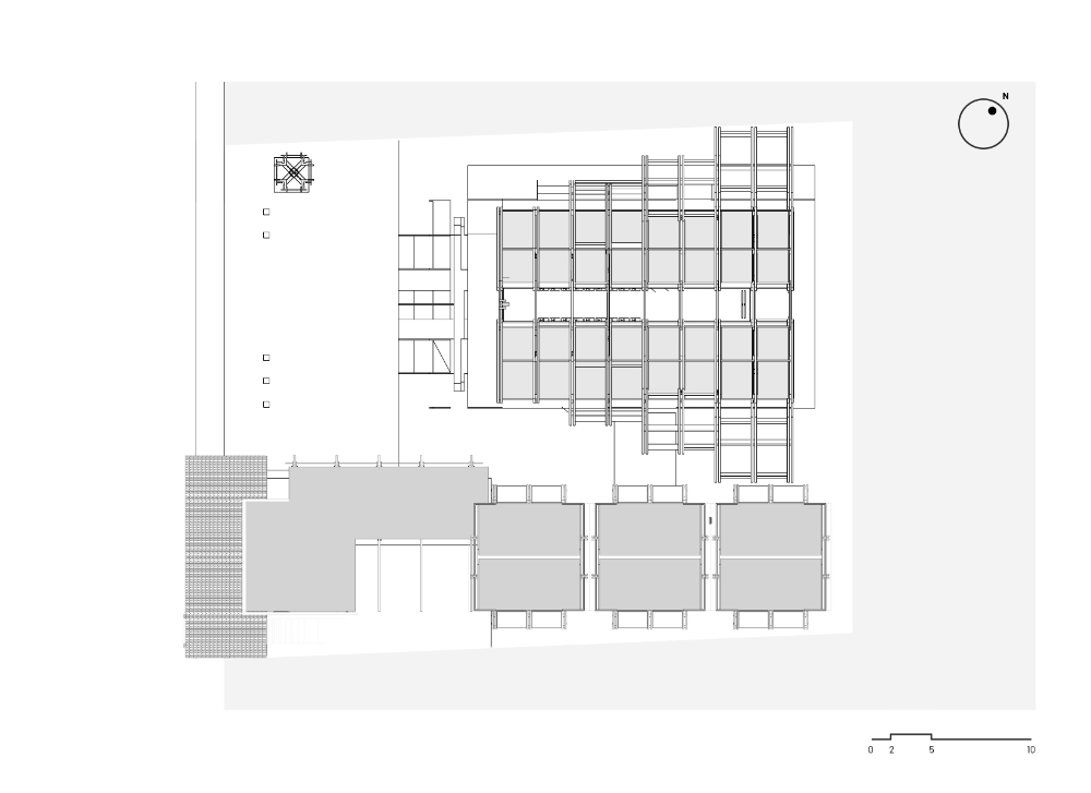
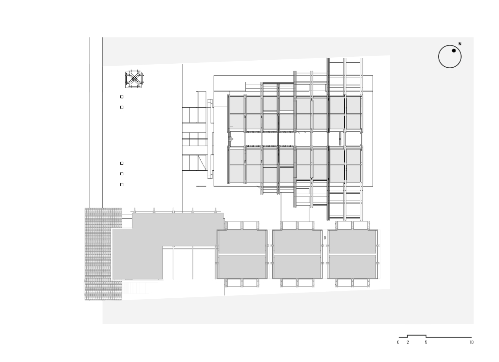
Guiados por una filosofía de reinterpretación contemporánea – inspirada en la obra del Pritzker David Chipperfield – no replicamos el pasado, sino que lo reescribimos con materiales locales (madera, teja) y un lenguaje arquitectónico nuevo. El gesto definitorio es una cubierta a dos aguas, cuya cumbrera se abre en una franja longitudinal de luz cenital. Esta luz no solo baña el espacio sagrado; en la noche, la abertura se convierte en una linterna espiritual, un llamado visual para las nuevas generaciones, simbolizando una fe viva que honra sus raíces sin anclarse en ellas.
Junto al templo, un museo compacto custodia la memoria moxeña, mientras una cafetería de morfología doméstica completa el conjunto, compartiendo su esencia constructiva.
Estos volúmenes, articulados con una galería exterior continua que los vincula con la plaza, conforman un nuevo patrimonio activo: un lugar donde la comunidad se reúne, recuerda y proyecta su futuro. La verdadera conservación no es inmovilizar la forma, sino dotarla de vida nueva, luz y uso significativo para el nuevo siglo.






















