El Conservatorio Multidisciplinario de Música para Santa Cruz de la Sierra, concebido como una infraestructura académica y cultural de alta complejidad, destinada a la formación profesional y a la difusión de la música. La propuesta surge a partir de la carencia de equipamientos especializados de esta escala en la ciudad y reconoce a la música como un lenguaje colectivo capaz de construir identidad cultural.
El conservatorio se inscribe en el Plan Maestro del Complejo Artístico Metropolitano de Santa Cruz de la Sierra, una estrategia urbana independiente que propone la refuncionalización del actual Zoológico Noel Kempff Mercado, estableciendo un nuevo marco de gestión del suelo municipal que preserva la vegetación existente e integra equipamientos culturales en convivencia con el entorno natural.
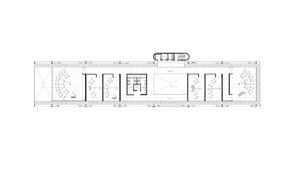
La arquitectura del conservatorio se expresa desde una lógica racional, estructurada y modular. El proyecto se organiza en tres bloques independientes, que separan funciones y escalas programáticas. Una torre de dieciséis niveles concentra aulas académicas, salas de danza, ensayo coral, biblioteca, coworking y auditorios. Su estructura metálica exterior, combinada con un núcleo de hormigón que concentra circulaciones y servicios, configura una doble piel que controla el ingreso de calor y regula la iluminación natural.
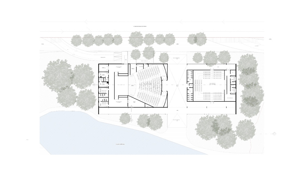
El bloque instrumental se resuelve como una gran superviga metálica apoyada en cuatro patas, albergando salas de orquesta, jazz y práctica individual, mientras libera completamente la planta baja como espacio público. Un anfiteatro exterior aprovecha la pendiente natural del terreno y acompaña el voladizo de treinta metros del volumen principal. El conjunto se completa con un auditorio para 300 personas y una sala black box para 150, concebidos como un volumen horizontal suspendido mediante pórticos metálicos.
Todo el proyecto se rige por una modulación estructural de 1,20 x 1,20 metros, que determina dimensiones, sistemas constructivos y coherencia espacial.




