El proyecto de ampliación y reconfiguración de la vivienda unifamiliar Casa R surge a partir de una construcción preexistente de carácter doméstico tradicional, con una organización fragmentada e imagen inconclusa. La intervención se plantea como una operación integral que combina ampliación, reorganización espacial y redefinición de envolvente arquitectónica, con el objetivo de mejorar la habitabilidad, optimizar el funcionamiento interno y fortalecer la relación con el entorno urbano.
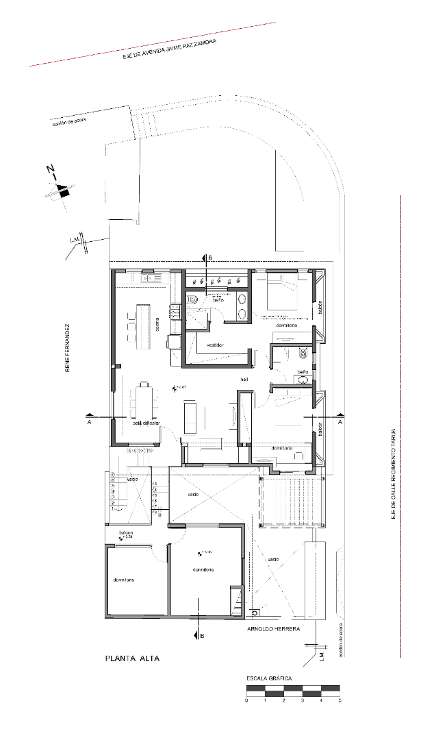
La vivienda se desarrolla en dos niveles, alcanzando una superficie construida total aproximada de 346,49 m² sobre un lote de 242,47 m², ubicado en la zona de San Gerónimo. El proyecto organiza el programa mediante una clara diferenciación entre áreas sociales, privadas y de servicio, mejorando las circulaciones y la calidad espacial.
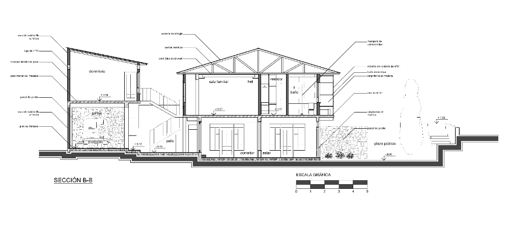
En planta baja, espacios sociales; sala de estar, comedor y cocina se integran de manera fluida, estableciendo una relación directa con patios y áreas exteriores. El patio interior cumple un rol articulador, aportando iluminación y ventilación natural, al tiempo que preserva la privacidad frente a la calle. En este nivel se incorporan también dormitorios, baño completo y garaje, resolviendo un funcionamiento claro y eficiente.
La planta alta, resultado principal de la ampliación, refuerza el área íntima mediante la incorporación de nuevos dormitorios, baño, vestidor y espacios de estar familiar, organizados a partir de un hall distribuidor que garantiza independencia y confort.
Formalmente, la intervención redefine la imagen de la vivienda mediante una composición sobria de volúmenes, cubiertas inclinadas y equilibrio entre llenos y vacíos. Balcones, aleros y retranqueos regulan las visuales y asoleamiento. La materialidad; muros revocados, losas de hormigón armado, cubiertas de shingle y carpinterías de aluminio consolidan una arquitectura coherente, integrada al tejido urbano y adaptada a las dinámicas contemporáneas de la vida familiar.









