Ubicada en la ladera de colinas en las afueras de Santa Cruz, la vivienda se concibe como una residencia aislada de uso estacional, donde la topografía determina de forma directa su implantación, organización espacial y expresión formal. La pronunciada pendiente obliga a resolver el proyecto mediante dos volúmenes de hormigón armado dispuestos en niveles desfazados, generando una composición eficiente que acompaña el terreno. Todo el proyecto se desarrolla bajo una modulación de 1,20 x 1,20 metros, ordenando estructura, cerramientos y distribución interior.
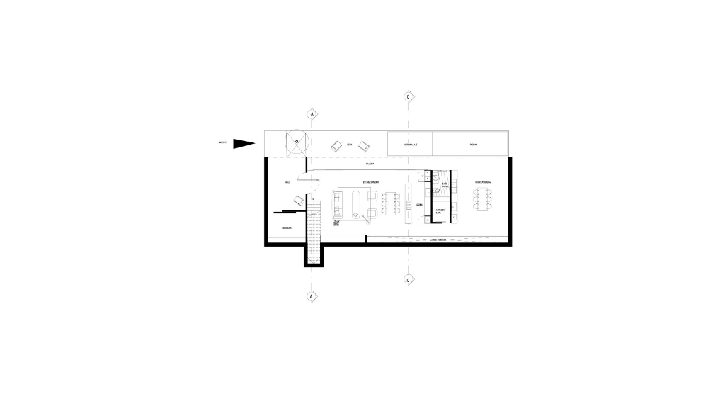
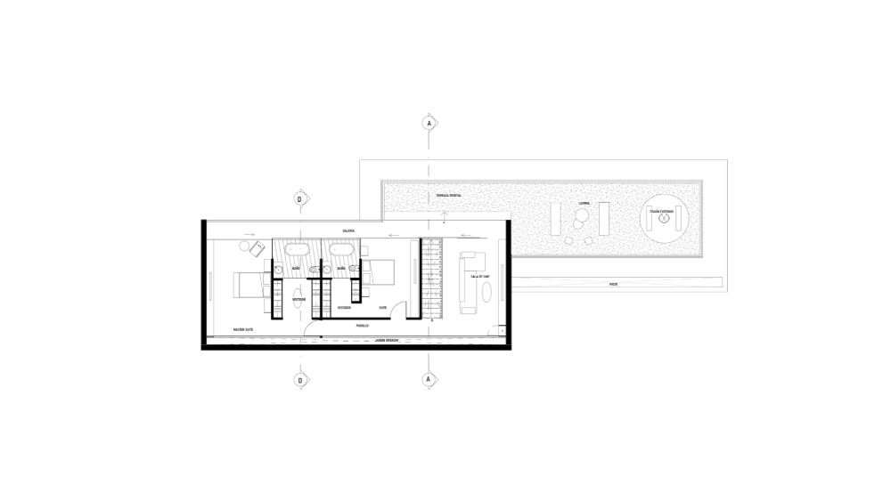
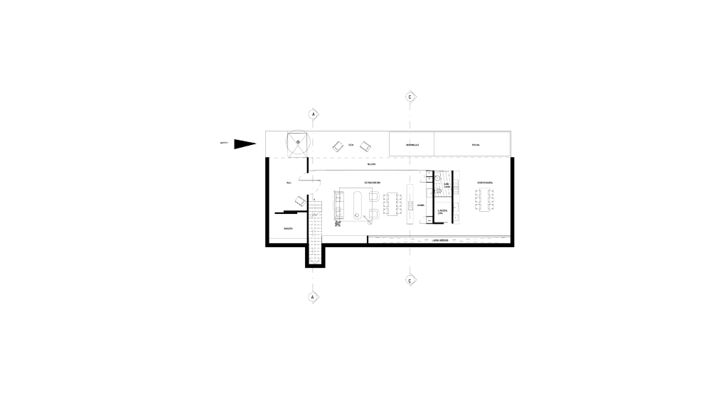
La planta baja se desarrolla como un bloque parcialmente enterrado destinado al área social, integrando terraza, piscina, churrasquera y un espacio interior continuo de sala, comedor y cocina, además de áreas de servicio. La planta alta se desplaza respecto al volumen inferior y se encuentra parcialmente suspendida, conteniendo dos suites, una master suite, sala de TV y una terraza ajardinada que funciona como cubierta activa del nivel inferior.
Estructuralmente, ambos bloques se resuelven como cajas de hormigón con vigas invertidas longitudinales, configurando marcos autoportantes que liberan el interior de columnas y permiten una apertura total hacia el paisaje. Su orientación, cerrada al este y oeste, maximiza la iluminación y el control solar.
El proyecto incorpora una chimenea térmica en la escalera para ventilación cruzada, recolección de agua pluvial para inodoros y estrategias pasivas como aleros y cubierta verde. Se propone además el uso de hormigón sostenible con reducción estimada del 30% en huella de carbono, conservando especies nativas y minimizando excavaciones.










