En la dinámica trama urbana de Santa Cruz de la Sierra, Jardin Noir se erige como una reinterpretación contemporánea de la vivienda tropical. El proyecto materializa su nombre a través de una dualidad de contrastes: un volumen sólido de carácter pétreo y oscuro (“Noir”) que es intervenido rítmicamente por la naturaleza viva (“Jardin”).
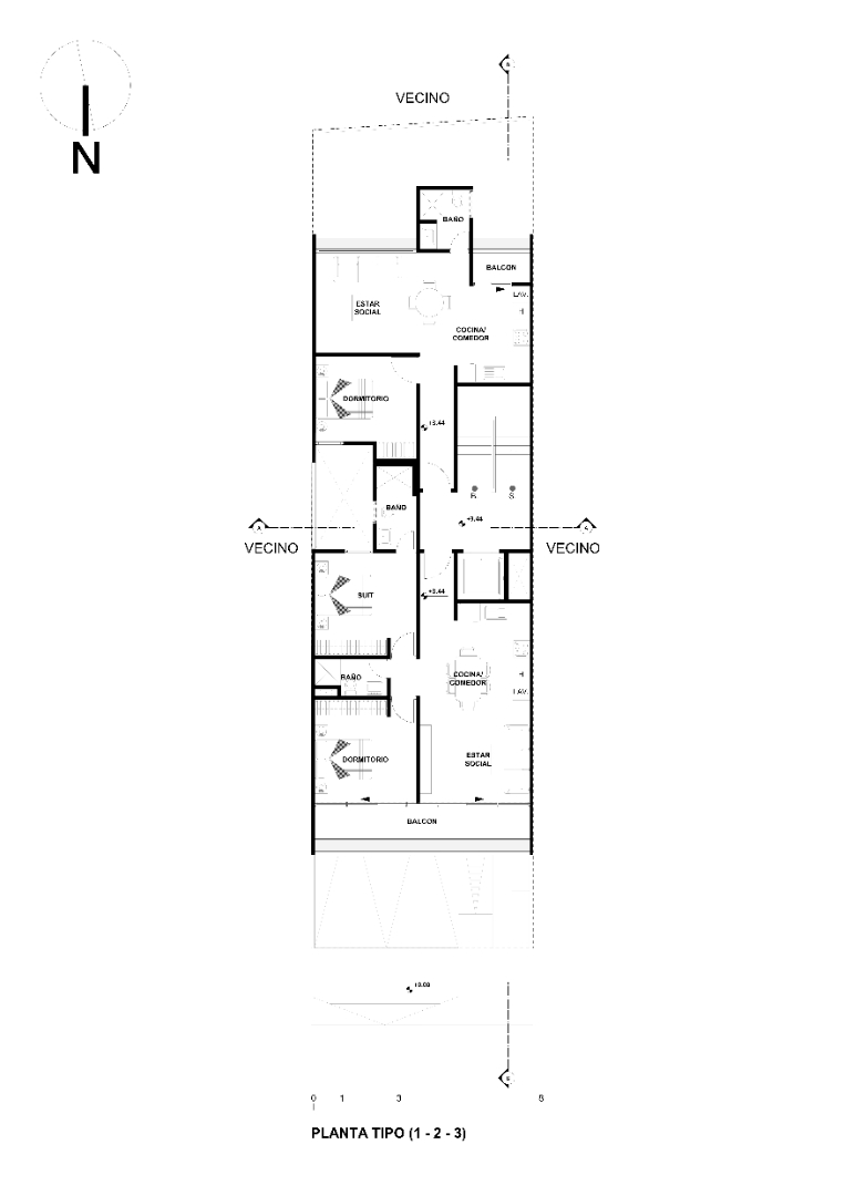
La fachada se concibe como una piel texturizada que otorga atemporalidad y presencia, mientras que los cielos de madera y la vegetación emergente aportan calidez doméstica. Arquitectónicamente, los profundos balcones funcionan como dispositivos bioclimáticos pasivos; estos grandes aleros protegen los ventanales de la incidencia solar directa y reducen la carga térmica, crucial para el confort en el clima local.
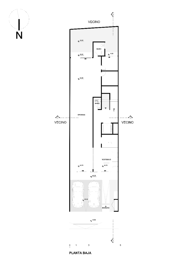
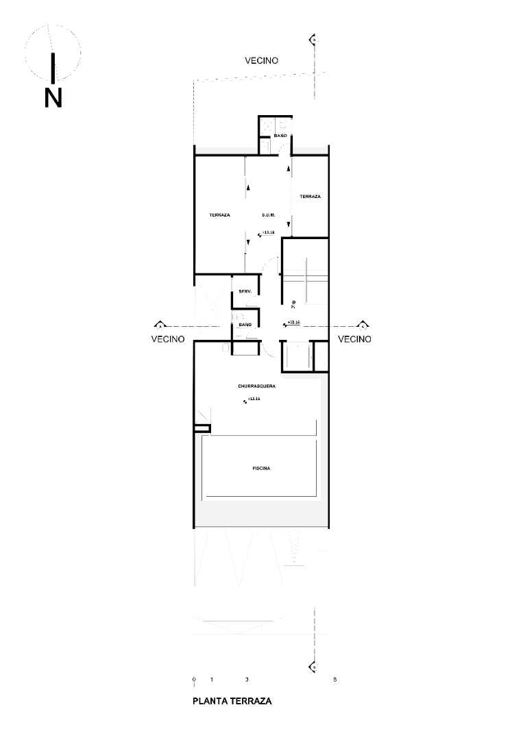
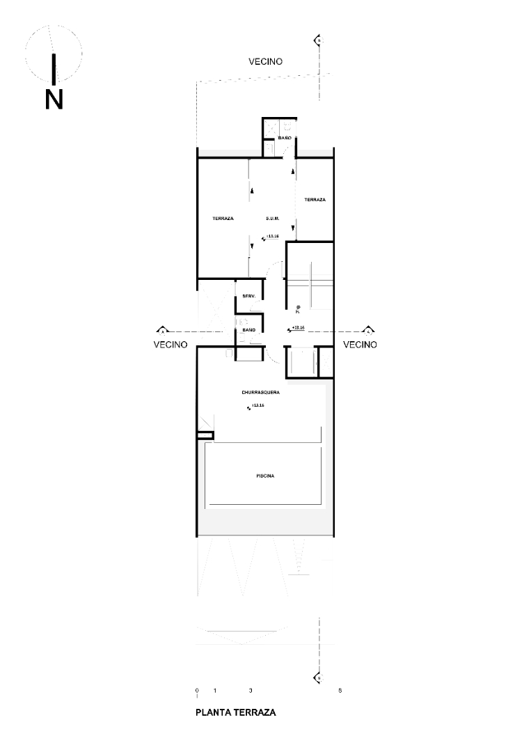
La planta baja libera el espacio para una transición fluida hacia la ciudad, mientras el edificio culmina en una terraza social con piscina, un oasis contemplativo elevado sobre el nivel de calle. Jardin Noir no es solo un edificio residencial; es un ecosistema vertical que equilibra la privacidad, la protección climática y la sofisticación del diseño moderno.










