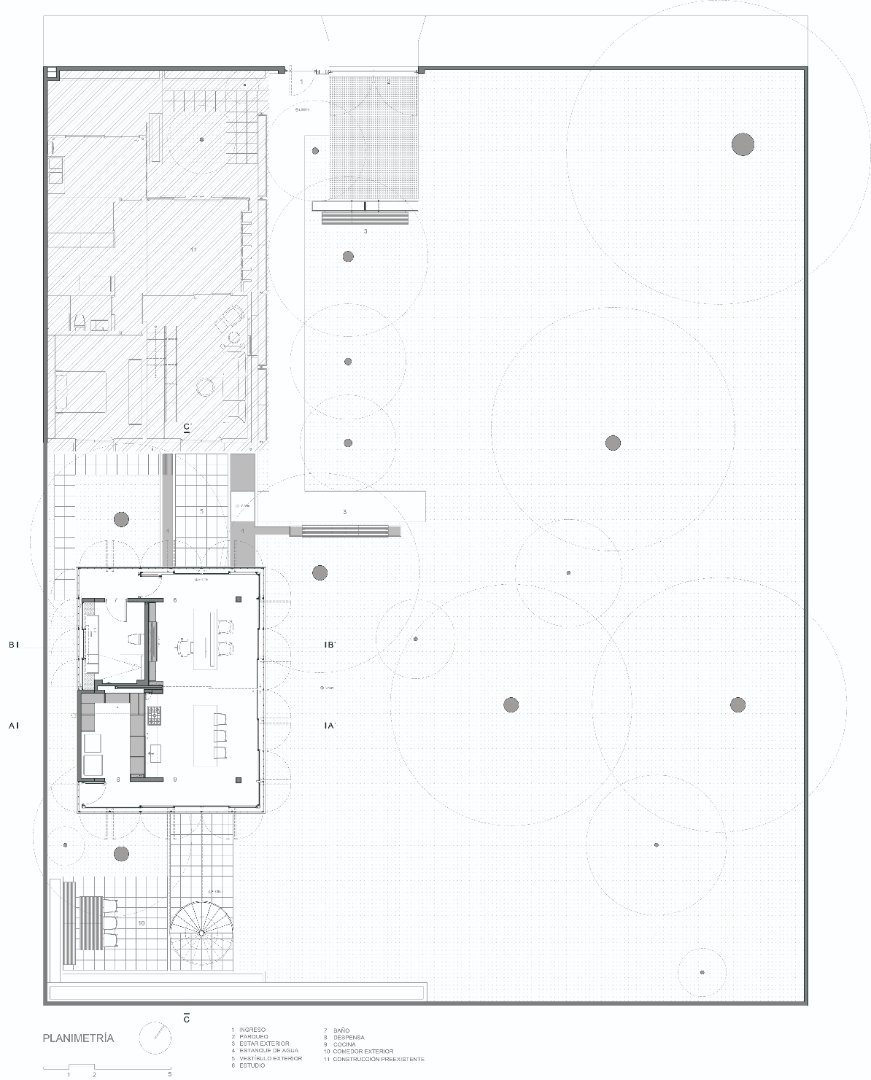
El proyecto se ubica en la Zona Sud Este de la ciudad de Santa Cruz, en un terreno regular de 1105 m2, que contiene una valiosa vegetación endémica de valor ecológico, presentando un par de retos importantes por resolver.
Se trata de la ampliación de una vivienda existente, habitada por una pareja de 45 y 50 años, ellos son Eliana y Edgar, buscan seguridad, aislamiento y silencio, diluyendo sus sueños en esta nueva intervención humana, respetando la memoria de la arboleda, buscando una coexistencia, donde los árboles cubran con su sombra, donde el viento fluya y ellos contemplen lo que no pueden controlar.
En el desarrollo del diseño salieron a flote muchos deseos, Eliana es una artista, dibuja y sueña con incursionar en la pintura, Edgar es un apasionado por la Fotografía y las artes visuales, sueña con tener un estudio propio.
Es un amante de la naturaleza, en el predio tiene varios árboles frutales. Sueña con tener una terraza, poder cosecharlos desde las alturas y disfrutar los frutos mientras contempla el paisaje. Ambos también piensan en el futuro y en todo lo que necesitan para envejecer en un lugar seguro y de fácil mantenimiento, un lugar abierto a la naturaleza que les dé seguridad, los abrace y proteja.
Como el concepto de la caja negra, donde el funcionamiento interno tiene procesos complejos, simplemente existen y siguen la intuición con el fin de experimentar, se van armando lienzos que, a través del tiempo y su complejidad humana, serán transformados por las personas que lo habiten.
De esta manera se implanta entre los árboles un volumen sobrio, delimitado por una losa inferior, una losa superior y una envolvente semi transparente que se expande y contrae, que protege y brinda privacidad sin comprometer el confort térmico, la ventilación e iluminación natural.






